Parkhaus Opéra
Theaterstrasse, Zürich, 瑞士
Das Verlegen der ehemals oberirdischen Parkplätze vor dem Opernhaus unter den Boden schafft die entscheidene Vorausetzung für die Neugestaltung des Sechseläutenplatzes. Die offene Platzfläche aus streifenförmigen Andeergranit wird durch Bauminseln gegliedert und belebt.
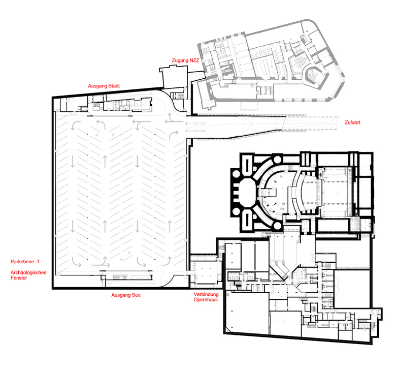
Auf zwei Parkebenen mit den Gesamtabmessungen 60m x 85m werden kompakt und übersichtlich 299 Parkplätze angeboten. Die mittige Stützenanordnung mit bis zu 13.75m Spannweite bietet ungehinderte Sicht, ermöglicht das einfache Ein- und Ausparken und bequemes Aussteigen. Keine Stütze steht im Weg.
Die Aufsicht befindet sich kundenfreundlich direkt an der Einfahrtsrampe auf der Parkebene -1.
Das neue Parkhaus ist nach dem Verzicht auf die Realisierung des Wandelhalle des Wettbewerbsprojektes von der Oper abgerückt und spannt sich grosszügig zwischen den zwei Polen der Zugänge „Stadt“ – an der Theaterstrasse mit Café - und „See“ – am Utoquai mit der archäologischen Ausstellung - auf.
Der durch die Ausgrabungen notwendig gewordene neunmonatige Unterbruch der Baustelle führte zu einzigartigen Funden, die dank der Initiative der Stadt im „Archäologischen Fenster“ auf der Seeseite einen attraktiven Fokus im Parkhaus darstellen.
Obwohl das Opernhaus 2007 entschied ihren Projektteil nicht weiterzuverfolgen, prägt das Thema Oper und die damit verbundene Festlichkeit das Parkhaus in prominenter Lage.
Die Rationalität der unterirdischen Parkierungsanlage wird mit gezielten gestalterischen Auszeichnungen aufgewertet: Die Zufahrt von der Falkenstrasse wird als festlicher Auftakt, als geheimnisvolles Eintauchen hinunter in die offenen und übersichtlichen Hallen inszeniert. Die mitternachtsblauen Schallschutzwände werden zum festlichen Vorhang.
Die Skulptur von Gottfried Honegger überhöht den profanen Ort der Zufahrtsrampe,
macht sie zum aktiven Teil des zukünftigen Platzes.
Das diskrete grünlich silbrige Schimmern der Ausgangswände, die eingespielte Musik, die Projektionen auf den Seitenwänden und die beschwingten Parkplatzmarkierungen erinnern an die nahe Oper.
Zeichnen das Parkhaus aus. – Unverwechselbar - Nur an diesem Ort.
Die Pavillons mit den Ausgängen „Stadt“ und „See“ stehen mit ihren zum Teil weitauskragenden Dächern im Zusammenspiel mit den bestehenden Pavillons am Bellevue.
Filigrane gelaserte Metallpanels umhüllen in differenzierten Abständen die zwei Pavillons. Sie lösen durch ihren hohen Lochanteil die technischen Anforderungen wie die feuerpolizeilich vorgeschriebene Entrauchung im Brandfall, die Absturzsicherung und die Schliessfunktion und lassen die Pavillons trotz unterschiedlichster Nutzungen - Eingang, Café, Züri-WC, Containerraum; Lüftung – als Einheit erscheinen.
Das Ornament, das auf einem Entwurf der Textildesignerin Janine Graf basiert und auf dem stilisierten Grundmotiv des Zürichsees aufbaut, zeigt dabei atmosphärisches Licht- und Schattenspiel bis hinunter auf die Parkebenen. – verbindet Platz und Parkhaus. Sichtbares Zeichen des inneren Zusammenhangs der beiden Bauaufgaben.
Die komplexen Randebedingungen prägen das Parkhausprojekt von Beginn an:
Das Parkhaus befindet sich praktisch komplett im See.
Der Seewasserstand liegt zwischen 2.00m – 2.50m über der oberen Parkebene.
Der Höchstwasserstand befindet sich an der Oberkante des Parkhauses.
Die Auftriebskräfte sind mit etwa 8t / m2 grösser als das Eigengewicht.
Der Baugrund ist sehr weich und setzungsempfindlich.
Die 80cm starken begrenzenden Schlitzwände haben eine Höhe von 18m bis 22m.
Die 59 Betonpfähle gegen den Auftrieb sind bis zu 27m lang und haben einen Durchmesser von 120 -150cm.
Insbesonders die Oper auf ihren 1833 kurzen (8m – 12m) Eichenpfählen war wegen des schwierigen Baugrundes unter Beobachtung.
Der über dem Parkhaus liegende zukünftige neue Sechseläutenplatz wird konstruktiv als Strasse bewertet
und kann mit 40t uneingeschränkt befahren bzw. kann mit Einzellasten bis zu 75t belastet werden.
Bauherr Parkhaus
Parkhaus Opéra AG, AMAG / HAG
Planerteam
Architekt: Zach +Zünd
ProjektleiterInnen: Stephan Rist, Iris Tausch
Landschaftsarchitekt: vetschpartner
Bauingenieur: Heyer Kaufmann Partner
Eröffnung Parkhaus
05/2012
Ausführungsplanung
Zach + Zünd für ARGE OPERA (Implenia Bau AG / Marti AG / Brunner Erben)
Fachplaner + Spezialisten
Bauingenieur Realisierung: Basler & Hofmann
Spezialtiefbau Projektierung: Schläpfer & Partner
Spezialtiefbau Realisierung: Gysi Leoni Mader
Gebäudetechnik Projektierung: Amstein + Walthert
Gebäudetechnik Realisierung: Meierhans + Partner /
Gemperle Kussmann / Hefti. Hess. Martignoni.
Fassadenplanung Projektierung: Mebatech
Bauphysik: Bakus
Lichtplaner: d’lite
Ornament: Janine Graf Textildesign
Signaletik: NOSE
Farbberatung: Jean Pfaff























