Primarschulanlage Dietlimoos
Adliswil, 瑞士
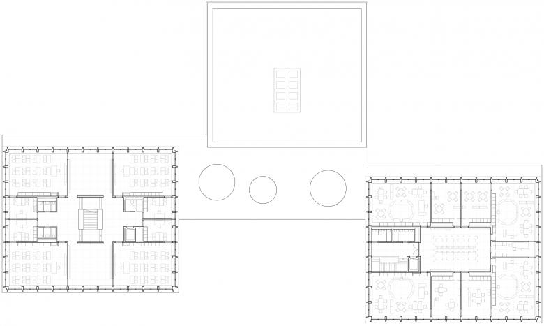
Das Projekt sieht eine Art Campusanlage aus drei unterschiedlich hohen, versetzt zueinander stehenden Baukörpern vor, die in vergleichbaren Grundabmessungen und einheitlichem architektonischen Ausdruck in dem Entwicklungsgebiet Dietlimoos einen identitäts-stiftenden Ort bilden. Gebäudekörper und Sportflächen sind derart angeordnet, dass sie eine differenzierte Aussenanlage bilden für die unterschiedlichen Altersgruppen der Kinder. Der Hauptzugang zu den Gebäuden erfolgt über einen gemeinsamen Vorplatz, der mit einem die drei Baukörper verbindenden Vordach als zentraler Begegnungsort ausgezeichnet ist.
Die Aufteilung des Raumprogramms verfolgt eine optimale Entflechtung der unterschiedlichen Nutzungen auf drei Häuser: das viergeschossige Primarschulhaus, das zweigeschossige Gebäude für Kindergarten und Tagesstruktur und das eingeschossige Mehrzweckgebäude, das auch externen Nutzern zur Verfügung steht. Bezüglich der Innenorganisation sind das mittlere, eingeschossige Mehrzweckgebäude und das zweigeschossige Gebäude für Kindergarten/Tagesstruktur mit mittiger Verteilerhalle klassisch organisiert. Dem gegenüber zeichnet sich das viergeschossige Primarschulhaus durch die Positionierung der Treppenanlage im Zentrum des Gebäudes aus. Die zentrale Setzung der Treppe geht einher mit zwei an die Fassade gerückten Eingangshallen, die jeweils in die zwei Klassen eines Jahrgangs verteilen und dank der optimalen Belichtungssituation beiden als Garderoben- sowie als zusätzlicher Aufenthaltsraum dienen. Die mittige Halle wird hier ebenso wie in den beiden anderen Häusern über eine kubische Gruppe von Oberlichtern inszeniert.
Verfahrenstyp: Selektiver Wettbewerb 2014, 1.Preis
Planung / Ausführung: 2016-2018 / 2018-2020
Nutzung: Primarklassen, Kindergarten, Tagesstruktur, Mehrzwecknutzungen
- 年份
- 2020
- 项目状态
- 已建造



















