Renovation Project for Mikiya
Kinosaki Onsen, 日本
Located in Kinosaki Onsen(hot springs) in Hyogo prefecture, “Mikiya” is a traditional Japanese ryokan known for its 300 year history and as a lodge associated with the renowned novelist Naoya Shiga. The building is also known as a registered tangible cultural property, with a historical atmosphere that can be noticed throughout the wooden structure. At the same time Mikiya was facing inevitable deterioration, and started their renovation plan in 2013. Instead of a full renewal, the client was considering this renovation scheme as an “update”, thus the entire project was based on the idea of updating the facility while maintaining the existing elements and atmosphere, and proceed in several phases from bath, special room, guest rooms, washing rooms, hall room.
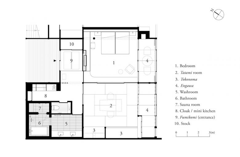
< Room#22 >
In the fourth phase of this project, “Room#22” , a special room that once welcomed members of the royal family, was renovated in addition to the private baths. This room, which is the largest in the ryokan and originally had two Japanese-style rooms, was updated to a Japanese-Western blend consisting of one Japanese-style room and a Western-style room. Through the project, we focused on creating various connections between the spaces, rather than simply converting the former style into a Western one.
For example, by taking advantage of the difference in elevation made by removing the existing floor, a porch-like area was created between the two rooms. The idea was to lower the eye line when viewed from the Japanese-style room, and to lower the level in the Western-style room which serves as the bedroom. The alcove was removed from the Western-style room, while leaving one on the Japanese-style room side. However, pillars that are structurally necessary were newly constructed, and the wooden planks used for the alcove were reused as a part of flooring for the porch. In addition, the single wood board used for the entrance step was divided and reassembled with a washed-out floor, and other usable materials were inherited while making changes to the room.
In addition, the ceiling of the Western-style room and the upper part of the bedhead were covered with an arched ceiling inspired by traditional Western-style buildings. The walls and ceiling were finished integrally with plaster to create a softness throughout the space. In addition, the transoms at the boundaries between the Western and Japanese-style rooms were replaced with glass, creating a connection between the spaces while dividing them as rooms. Simultaneously, a partition wall was built in the center, reconfiguring it as a separate porch for both rooms. The sliding shoji doors were replaced with glass on the Western-style porch only. While visually maintaining a view into the garden, the glass was sandblasted to create a gradation, creating a sense of spaciousness and serenity simultaneously. The granite-finished dressing room and bathroom have a new bathtub made of Aomori hiba (cypress) and a steam sauna. The bedhead lighting and lounge chairs were originally designed and manufactured, and the facilities and furniture were designed to fit in with the atmosphere of the room.
< Private Bath >
In this fourth phase of renovation, in addition to the special room “Room 22,” two private baths in different sizes, the “Kuruhi-no-yu” and the “Futami-no-yu,” were planned. The relatively compact yet comfortable “Kuruhi-no-yu” features a bathtub made from Aomori hiba (cypress), light earth-toned plaster on the walls, and a combination of dyed wood flooring and a scrubbed finish on the floor, providing a relaxing atmosphere. In addition, a light window that also serves as a ventilation window was added to the wall on the courtyard side to allow light to softly shine into the warm space. On the other hand, the “Futami no Yu,” which is large enough for a family to bathe together, was entirely designed with granite finished by a jet burner. The drainage area, which was required because of the continuous flow of water, was covered with cobble gravel, and the ceiling was partially covered with latticework of Aomori hiba (Aomori cypress), adding a change to the bathroom space. In addition, the wall surface, which had large aluminum sash windows, was replaced with a single-pane FIX window that emphasizes horizontal lines. By reducing the height of the windows, we aimed to create a relaxing space where brightness and darkness coexist. In both bathrooms, the water spouts were made originally from Aomori hiba. The baths were designed to visually experience the free-flowing water as well as pleasing to the eye.
Client: Mikiya
Type of Project: Interior
Use: Japanese Hotel
Period: Feb 2021 – Oct 2021, Feb 2022 – Sep 2022
Floor Area: Room#22 / 106.7m2, Kuruhi-no-yu / 17.22m2, Futami-no-yu / 24.75m2
Location: Hyogo(Kinosaki), Japan
Design: Koichi Futatsumata, Koichi Shimohira
Construction: Kawashima Co., Ltd.
Lighting Plan: Tatsuki Nakamura (BRANCH LIGHTING DESIGN)
Manufacture, Coordination of Furniture: E&Y
Photo: Hiroshi Mizusaki





















