residence by the sea
After the tsunami, residents of this Chennai suburb – sited on the coastal edge of the bay of bengal – have begun the process of rebuilding their homes.
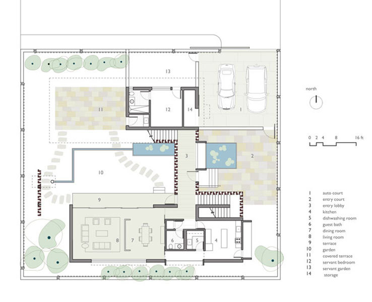
This residence has been designed for three generations of a South Indian family. Linked by a water channel, a sequence of courtyards and gardens weave through the primary volumes of the building. The circulation galleries and stairs are enclosed in permeable brick walls, filtering light and breeze in the tropical climate. Recycled concrete utility poles are stacked to mark boundary walls. The high humidity will ensure a fine growth of moss on the slightly offset concrete surfaces – a result of the irregular sizes of poles. The roof terraces and balconies are covered in salvaged porcelain tile, offering a reflective foil for the tropical sun. The erratic municipal water supply in Chennai necessitates a large water storage tank, typically situated on the roof. Inspired by the clients’ fascination for shadow patterns, the water tank has been mounted atop the western screen wall, creating a sundial in the main garden.
- 年份
- 2003
- 项目状态
- 正在施工











