Revitalisierung ÖBB Bürohaus Praterstern
Praterstern 3, Wien, 奥地利
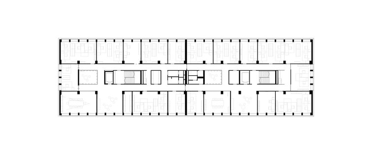
Gemeinsam mit Architekt Günter Mohr haben wir eine mintgrüne, plastische Welleternit-Hülle für das in die Jahre gekommene Bürohaus entwickelt. Das Haus aus den 60er Jahren wurde zu einem zeitgemäßen Bürokomplex für 305 MitarbeiterInnen umgestaltet.
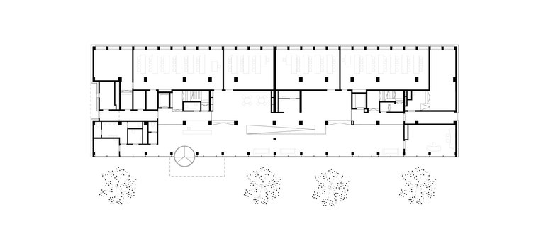
Die ÖBB wollte ihre Standorte um den Praterstern herum zusammenlegen und sich intern neu organisieren und ihre einst qualitativ gebaute Immobilie – aus den 60er Jahren – zu einem zeitgemäßen Bürokomplex adaptieren. Unter anderem wurden zwei von vier Stiegenhäusern entfernt, die Fenster ersetzt und durch einen moderne Sonnenschutz ergänzt. Eine hellgrüne, gerillte Welletrnithülle mit Aluminiumprofilen erneuert die Fassade, die neu gedämmt und hinterlüftet wurde.
Die Eingangssituation wurde mit einem hellen, einladenden Foyer mit einem werthaltigen Terrazzoboden zu einer klaren Adresse geklärt. Auf dem Dach im 8. OG wurde eine begrünte Terrassenlandschaft für die MitarbeiterInnen geschaffen.
Projektdetails
Auftragsart: Geladenes Bieterverfahren
Auftraggeber: ÖBB Infrastruktur AG
Ort: Wien, AT
Realisierung: 2017-2018
Status: Fertiggestellt
BGF: 8970 m2
Mitarbeiter: Otto Bäuerle, Michael Salvi, Andres Schenker, Thomas Weber
Kooperation
Architektur: Günther Mohr Architekt
Statik: Tecton Consult Baumanagement
Bauphysik: AXIS Ingenieurleistungen
Gebäudetechnik: TK11 Gebäudetechnik
Brandschutz: brandRat
Elektrotechnik: Eipeldauer + Partner
Visualisierungen: Miss 3
Fotografie: David Schreyer
- 年份
- 2018
- 项目状态
- 已建造
- 客户
- ÖBB Infrastruktur AG
- 团队
- Otto Bäuerle, Michael Salvi, Andres Schenker, Thomas Weber
















