Revitalization of a Town House
Linz, 奥地利
Name of work in English
Revitalization of a Town House
Name of work in original language
Renovierung Stadthaus
Placement
Shortlisted
Prize year
2022
Year completed
2020 (Year began 2018)
Authors
Gunar Wilhelm (1980 Austria); Sandra Gnigler (1981 Austria)
Program
Collective housing
Labels
Courtyard, Complex
Total area
425 m2
Usable floor area
890 m2
Client
Sandra Gnigler, Gunar Wilhelm
Client Type
private
Map
LatLng: (48.3064331, 14.2924113)
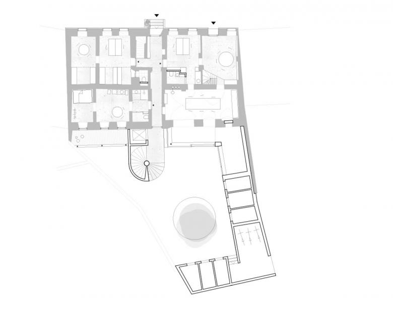
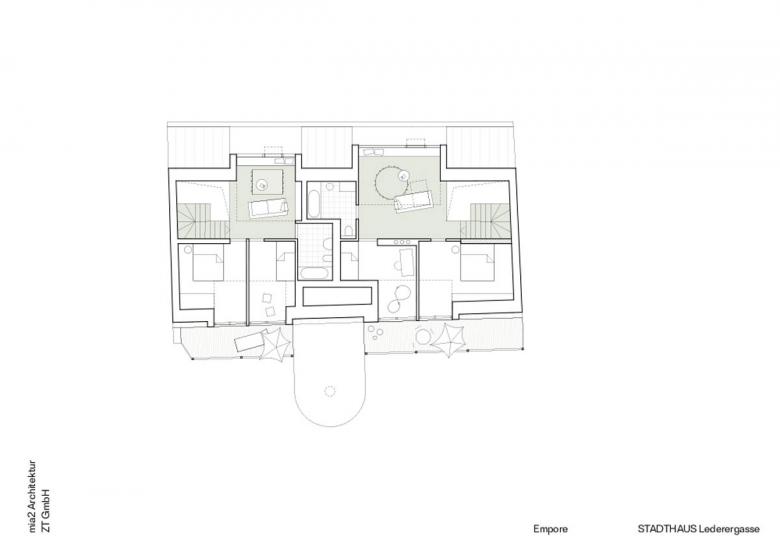
In revitalising and adding further floors to the sixteen century building we wanted to show that continuing building in the city is a responsible way can be successful not just in aesthetic terms but also socially and economically. For us, this project is a passion, experiment and space for life. mia2 removed the pitched roof of the originally three storey artisan´s house, replacing it with a new building. This new structure takes up the eaves height of the adjoining 19th century corner house and is inscribed precisely within the maximum contours for the roof space permitted by the building authorities. Upon taking a closer look what could, conceivably, sound like yet another repetition of an all-too familiar procedure, i. e. “investor maximises usable floor area“ turns out to be a courageous step and one that is far too seldom taken – given the desolate state and the oppressively low ceiling heights of the existing building, few clients wouldn`t have thought twice about demolition in order to build the maximum permitted volume. A city is, not least of all, a memory in built form. mia2 show respect for the everyday culture of the past. With this revitalisation they prove that it is possible to raise a building´s cultural level while also improving its functionality and level of comfort. By continuing this building, they demonstrate belief in the future of the city as a form of settlement that, in order to remain successful, has always had to combine flexibility with meeting the most elemental human needs. While this green space is not that large and it plays a significant role in the concept. A front element with balconies extends along the entire south front of the building. Next to the lift shaft a new spiral stairs as a continuation of the historic central corridor winds upwards, enriching the courtyard with an element of movement. It is like a greeting, a wave, also to the residents of the surrounding buildings: the often-invoked anonymity of the city is not cultivated here. Construction elements such as the timber beams of the existing building that were stripped from hideous layer, or the concrete beams above the wide window openings in the new building are exposed. Historical rubble walls, clay obtained during the ground floor excavation work and used to make a rammed earth wall, the specially developed precast concrete elements for the new staircase or the green polycarbonate grilles of the balcony slabs make each space something special. In comparison the front of Lederergasse appears severe. After a thorough cleaning of its facade the old building now shows again what it is: a solidly built structure with a rendered, hole-in-the wall facade. In the timber building on top of it mia2 Architektur developed this motif further: from a vertically articulated front with openings to a rhythmically structured envelope, which, through the gently reflective volumes of the two dormers, seems to dissolve in the light of the sky.
- 年份
- 2020
- 项目状态
- 已建造
相关项目
杂志
-
-
每周建筑
The Three-Body Problem: Trapped in a Wave Sandwich
Eduard Kögel, Scenic Architecture Office | 13.04.2026 -

















