RTC
Beekstraat 21, Kortrijk, 比利时
De naam RTC staat voor Regionaal Technisch Centrum en wordt gerund door Pro Mechatronica met als doel het slabakkend technologisch onderwijs in de regio Zuid-West Vlaanderen nieuw leven in te blazen.
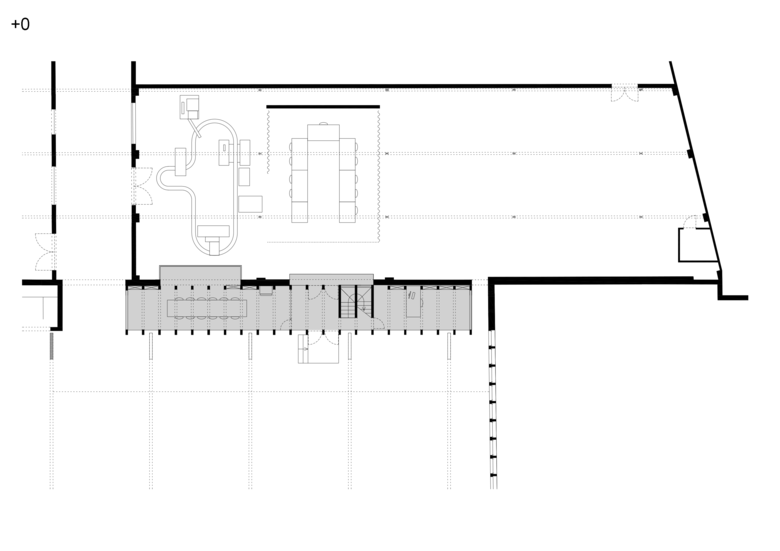
De bouwopdracht hield in op een korte termijn (12 maanden tussen eerste contact en oplevering) een volwaardig project aft te leveren. Het bouwprogramma bestaat uit twee delen: een administratieve zone en een leslokaal met simulatie mogelijkheid, aangesloten op de roboticalijn.
Het ontwerp eigent zich een no-nonsense strategie toe. Een verouderd sanitair blok werd afgebroken en in de donkere speelplaatsoverkapping werd een grote sleuf gemaakt. Dit geeft een lange, luchtige vide. In deze vrijgekomen strook werd een geprefabriceerde houtskeletstructuur opgetrokken. Deze geeft plaats aan de administratieve zone. Ze overziet zowel de achterliggende fabriekshal, de speelplaats als de hemelkoepel.
Het gevraagde leslokaal werd in de aanpalende fabriekshal voorzien: zwevend opgehangen aan de dakconstructie en afgezoomd met gordijnen. Een rood tapijt markeert de leszone. De roboticalijn is als kroonjuweel overal zichtbaar. Het leslokaal is transparent en laat gedeeltelijk inkijk toe.
Tussen speelplaats, administratie, fabriekshal en leslokaal ontstaan hierdoor doorzichten, complementair aan de nieuwe inzichten die de school wil genereren.
Momenteel werken we aan een ontwerp voor een nieuwe overdekte speelplaats, met behoud van de bestaande "De Coene" spanten.
- 年份
- 2003
- 项目状态
- 已建造
- 团队
- Francis Catteeuw + Lieven Dejaeghere














