Sanierung zweier Wohnungen
Historische Gebäude prägen das Stadtbild und tragen zur Identität eines Viertels bei. Doch wie lassen sie sich zeitgemäss sanieren, ohne ihren Charakter zu verlieren? Wie kann nachhaltiges Bauen in einem gewachsenen Umfeld funktionieren?
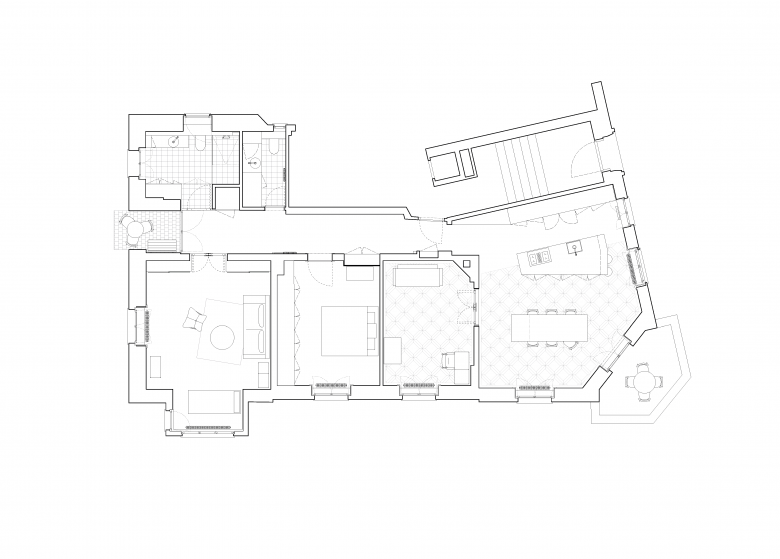
Die Bauherrin besass zwei Wohnungen in einem Gebäude von 1898, das über die Jahrzehnte mehrfach umgebaut wurde – oft zulasten der ursprünglichen Architektur. Dabei gingen historische Details verloren, und die Raumstruktur wurde durch frühere Eingriffe zergliedert.
Unsere Recherche ergab, dass die beiden Wohneinheiten ursprünglich eine grosse Wohnung bildeten, die im frühen 20. Jahrhundert geteilt wurde. Diese Erkenntnis diente als Grundlage für eine behutsame Sanierung, die die Geschichte respektiert und gleichzeitig moderne Wohnbedürfnisse erfüllt.
Ein zentraler Aspekt der Sanierung war der bewusste Umgang mit Ressourcen. Statt Materialien zu entsorgen, wurden sie erhalten und neu interpretiert. So kam unter Laminat ein historischer Parkettboden zum Vorschein, der aufbereitet und in die Gestaltung integriert wurde. Abgenutzte Teppiche wurden entfernt, die darunterliegenden Balken und Schlackereste mit Beton vergossen, geschliffen und als fertige Bodenfläche genutzt. Diese Massnahmen reduzierten Bauschutt und bewahrten den Charakter des Gebäudes.
Gezielte Veränderungen stellten die ursprüngliche Raumwirkung wieder her. Wände wurden geöffnet, um grosszügigere Übergänge zu schaffen, und Decken freigelegt, um die ursprüngliche Raumhöhe erlebbar zu machen. Die Nasszellen wurden komplett erneuert und dezent in die neue Raumstruktur integriert.
Massgefertigte Schreinerarbeiten bieten praktischen Stauraum und nutzen den vorhandenen Platz optimal. Ein fein abgestimmtes Farbkonzept hebt die Einbaumöbel hervor und schafft eine harmonische Verbindung von Alt und Neu.
- 年份
- 2023
- 项目状态
- 已建造



















