Schulanlage Rebhügel
Zürich-Wiedikon, 瑞士
Wie ein riesiger Felsblock liegt das neue Schulgebäude in der parkartigen Anlage, schmiegt sich zwischen die bestehenden Baumgruppen. Seine vollständige Grösse und Form entzieht sich dem ersten Blick, lediglich Fragmente sind zu erkennen. Die steinerne, skulpturale Form will entdeckt werden, sie erschliesst sich einem erst beim Nähertreten.
Die bestehende Anlage wird durch das neue Primarschulhaus ergänzt ohne die grossflächigen Aussenbereiche zu tangieren. Die raumdefinierende Funktion der Bepflanzung im östlichen Bereich wird vom neuen Baukörper unterstützt.
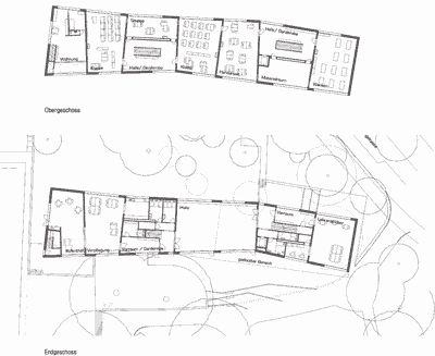
Die Schule wird im Normalbetrieb über eine grosszügige, zweiseitig belichtete Halle betreten. Mittels grosszügig öffenbaren Fronten kann diese zu gewissen (Jahres-) Zeiten als gedeckter Aussenraum genutzt werden. Die Halle fungiert als Treffpunkt innerhalb der Schule, wo die getrennten Erschliessunszonen der Obergeschosse wieder zusammenfinden.
Vertiefte Überlegungen zu den neuen pädagogischen Anforderungen und zu der speziellen Lage in der parkartigen Umgebung, führten beim Neubau Rebhügel zu einem Konzept ohne Korridore, mit zweiseitig belichteten Klassenzimmern.
Sanierung / Umbau Oberstufe
Die bestehende Oberstufenanlage, 1951 von Arch. A. Notter erbaut, weist beachtliche architektonische Qualitäten auf. Mit den weitgehend originalen Bauteilen steht die Anlage auch als Zeuge seiner Zeit im Schulhausbau. Zur Ehrwürdigkeit des Komplexes trägt sicher auch der alte Baumbestand mit seinen schönen Einzelbäumen bei.
Neben allen technischen, bauphysikalischen und baurechtlichen Anforderungen gilt es primär, dieser Anlage die nötige Referenz zu erweisen. Der Erhalt der originalen Fassaden, Raumgefüge, Ausstattungen und Materialien steht daher im Vordergrund. Eingriffe haben sich am Vorhandenen zu orientieren.
- 年份
- 2002
- 项目状态
- 设计
- 客户
- Stadt Zürich
- Wettbewerb
- 2002, 1.Preis
- Planung Neubau
- 2002-2003 (gestoppt)
- Sanierung
- 2002-2003, 2006-
- Aufgabe
- Neubau Primarschule








