world-architects.com
Profiles of Selected Architects
简介
项目
职位
活动
杂志
主题
网络
登录
注册
中文
Català
Deutsch
English
Español
Français
Italiano
Nederlands
Português
中文
日本語
Català
Deutsch
English
Español
Français
Italiano
Nederlands
Português
中文
日本語
World-Architects
项目
Schulzentrum Ost Ebikon
Rankstrasse 2, Ebikon, 瑞士
Der neue Baukörper in der terrassierten Umgebung
© VPA ARCHITEKTUR / Flooer
Offener Projektwettbwerb, 4.Rang
Durch die Setzung öffnet sich das parkartige Schulareal zum Quartier
© VPA ARCHITEKTUR
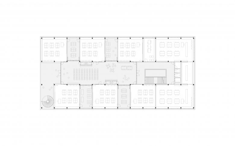
Schulcluster im 3. Obergeschoss
© VPA ARCHITEKTUR
学校
建筑师
VPA ARCHITEKTUR
年份
2022
项目状态
正在施工
相关项目
Moos
playze
Reiters Reserve Premium Suiten
BEHF Architects
Erweiterung und Instandsetzung Hallenbad Altstetten
MIYO Visualisierung
Neubau von fünf Einfamilienhäusern
Bäumlin+John AG
The Forge in der 105 Sumner Street in London
Kiefer Klimatechnik GmbH
Bauleiter/in oder Hochbautechniker/in (m/w/d), 80–100%
schulzarchitektur gmbh
Projektarchitektin / Projektarchitekt ETH/FH 80%-100%
RUPRECHT ARCHITEKTEN
Wettbewerbsarchitekt/in 80-100%
RUPRECHT ARCHITEKTEN
更多
杂志
Headlines
Getty Center to Close Temporarily for 'Major Modernization Efforts'
John Hill
| 10.04.2026
Insight
Energy-Positive Construction
Elias Baumgarten
| 09.04.2026
Headlines
Kengo Kuma To Design New National Gallery Wing
John Hill
| 08.04.2026
Film
Architecture for People, Not for Architects
John Hill
| 08.04.2026
Found
2 x 2 = 4 Books from 2 Architects
John Hill
| 07.04.2026
以下出品方的其他项目 VPA ARCHITEKTUR
Verwaltungsgebäude Stampfenbachstrasse
Zürich, 瑞士
Zwicky Verwaltung
Wallisellen, 瑞士
Wohn- und Geschäftshaus ACCU-Areal
Zürich, 瑞士
Schulanlage CU Uetikon
Uetikon, 瑞士
Ersatzneubau Schulanlage Saatlen
Zürich, 瑞士