Umbau Doppelwohnhaus
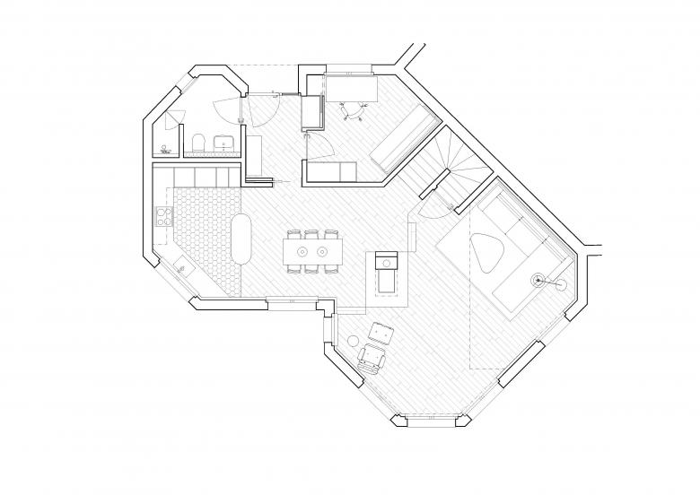
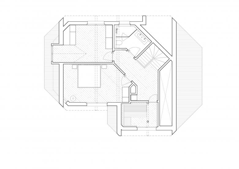
Das Doppelwohnhaus in einer Überbauung in Adliswil wird umfassend saniert. Die Raumstruktur wird grösstenteils beibehalten. Der Grundriss des Erdgeschosses wird, durch die neue Setzung des Cheminées und dessen Vereinfachung der Form, optimiert. Das Cheminée agiert als Raumteiler und zoniert als Kernstück den Wohn- und Essbereich ohne den Durchblick ins Grün des Gartens zu stören. Bäder, Küchen und Wandoberflächen werden neu konzipiert. Der Holzboden aus den oberen Geschossen wird im Erdgeschoss ergänzt und zieht sich neu durchs ganze Haus und bindet das Raumgefüge zu einer Einheit zusammen. Das Dach wird innen zusätzlich aufgedämmt und mit Gips verkleidet, um ein stimmiges Ganzes zu erzeugen und die Räume dadurch grösser erscheinen zu lassen.
- 年份
- 2021
- 项目状态
- 已建造
- 团队
- Philippe Niffeler, Gabriela Traxel, Caterina Schmidlin














