Umbau Wohnung in Basel
Basel, 瑞士
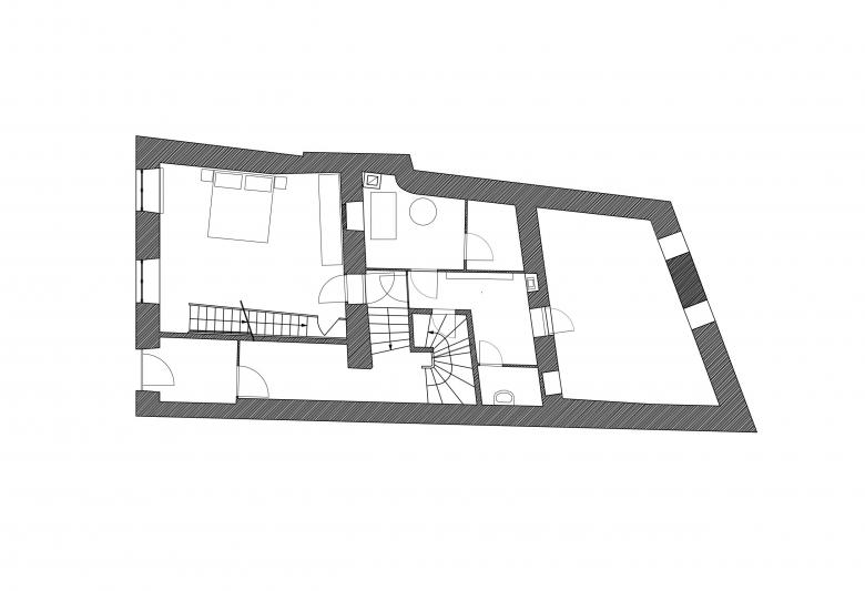
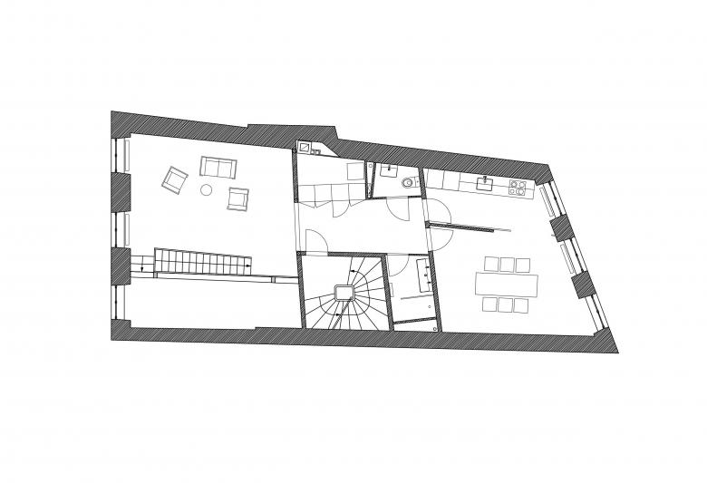
Umbau und Sanierung einer Maisonettewohnung im Hochparterre und Sou Sol in einem mittelalterlichen Wohnhaus zwischen Oberen Rheinweg und Rheingasse an der belebten Rheinpromenade im Kleinbasel.
- 年份
- 2020
- 项目状态
- 已建造
- 客户
- privat










