白鸟咖啡
No.832, Nanjing West Road, Shanghai, China, 上海, 中国
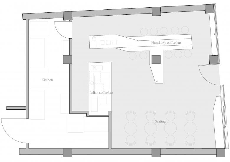
由栋栖设计的白鸟咖啡,藏于上海南京西路侧巷内闹中取静处。
室内材料分别是钢板黑色表面处理,水洗石墙面和实木多层板。正对入口方向的墙面均为实木多层板,多层板斜向45°侧面朝外,并交错前后地排列相拼而成墙面。吧台后侧的多层板墙面,多层板切割出了挂钩形状,挂钩可菜单牌,亦可作为挂衣物的功用。墙面局部为一实一空的交错,空的地方从厨房内部透出光亮来。
意式吧台正立面同样为实木多层板,并在咖啡机正下方的位置开洞口,用以展示咖啡机泵。手冲吧台则与长桌结合在一起,长桌较宽的一端为手冲台,然后往另一侧收窄为客座长桌。长桌正对入口的面和台面为实木多层板拼接;两侧垂直于入口的面,为黑色喷漆钢板。两侧的钢板到了台面高度,弯折悬挑为宽175mm的吧台侧沿。在靠近室内混凝土结构柱的位置,吧台面的钢板侧沿,悬挑出一片“侧翼”,包裹住结构柱,并在挑出的钢板端部的位置,以铰接的方式连接一根钢柱到顶面,作为结构加强。同样的铰接结构加强的方式,也运用在了靠外立面一侧的悬挑高吧台上。
垂直于入口方向的所有墙面,均为黑色钢板和水洗石墙面。黑色钢板墙面恰巧可以将多层板墙面予以收边。水洗石以黑色水泥为底,掺以鸡血色和米黄色小石子,地面水磨石的配色和水洗石墙面相统一。深色墙面和木质墙面相交错,相对比,又相融合。在复古的基调中,显出一股清新。
外立面延续了室内的材料,并在门头比例和玻璃门分割上,凸显出精致和古典的气质。门头分别由水洗石、绿植和烤漆钢板自上往下分为窄长的三段。横向均分的玻璃移门,以烤漆钢框辅以木条夹固玻璃,在最大程度引入光线的同时,可在天气允许的时候充分打开,吸引往来的行人进来小憩。
项目名称:白鸟咖啡
建筑设计:栋栖建筑
团队:姜南、马翌婷、王乐言
设计时间:2018年4月
建成时间:2018年9月
面积:60㎡
照片:刘瑞特
- 年份
- 2018
- 项目状态
- 已建造






















