Studienauftrag Sonnenfeld Süd
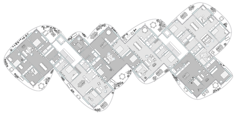
Die städtebauliche Setzung nimmt die bestehende Qualität des Ortes auf: Die eigene Welt, die sich hinter dem rundumlaufenden Baumsaum verbirgt, wird beibehalten. Die drei neuen Gebäude folgen in gebührendem Abstand auf der Nord-, Ost- und Westseite der Bepflanzung und spielen in der Mitte der Parzelle eine parkartige Wiese frei. Die viergeschossige Bauweise ist moderat und passt sich städtebaulich gut ein. Die Abgrenzung durch die allseitige bestehende Randbepflanzung trägt das Ihre dazu bei, dass die Volumen von aussen kaum spürbar sind. Die freie Form der Gebäudevolumen schafft dabei eine eigene Welt mit spezifischer Ortsqualität und hoher Authentizität.
Das architektonische Konzept schöpft seine Kraft aus der scheinbaren Unvereinbarkeit zweier unterschiedlicher Formgebungen: aus einer rigiden orthogonalen Struktur im Innern und einer diese umfliessenden freien, eleganten Form. Während der architektonische Ausdruck der Gebäude von aussen durch diese wolkenartige Fassadenausbildung dominiert wird, ist innerhalb der Wohnungen die Orthogonalität prägend. Im Zwischenraum der beiden Systeme, auf den rundum laufenden Terrassen erfährt man beide Geometrien gleichermassen.
Die Wohnungen verfügen über grosszügige durchgreifende Wohnbereiche, welche mit den zweiseitigen Sichtbeziehungen einerseits zum Park und auf der gegenüberliegenden Seite zum Baumsaum attraktive Aussichtsbeziehungen schaffen.
Die Küchen sind jeweils separat angeordnet und genügend gross um gleich-zeitig als Esszimmer zu dienen. Die seitlich an den Wohnraum angrenzenden Schlafzimmer verfügen über raumhohe Schiebetüren, so dass reiche Raum-beziehungen entstehen. Diese greifen sodann auch auf die Terrassen aus, lassen das Aussen und das Innen zu einer Einheit verschmelzen und erlauben bei geöffneten Schiebefenstern die unterschiedlichsten Wegbeziehungen.
Verfahren
Studienauftrag 2014, 1. Rang
Programm
Neubau von 71 3 1/2- bis 5 1/2 Zimmerwohnungen
- 年份
- 2014
- 项目状态
- 正在施工
- 客户
- Häberlin AG
- 团队
- Aline Brun, Franziska Schneider, Nigel Holmes, Liliana Miguel, Martina Peneva
- Landschaftsarchitektur
- Raymond Vogel Landschaften


