Beijing Logo
Beijing Logo
From the very first beginning the conceptual design of the project was substantially influenced by the economic and social development of the area along the axis of Zhong Guan Cun South Road, which leads straight to Beijing's Technology Park at the north.
By generating an urban sculpture out of its surrounding context, the architect's intention is to reflect and to stimulate this specific dynamically growing urban structure at the same time.
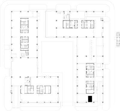
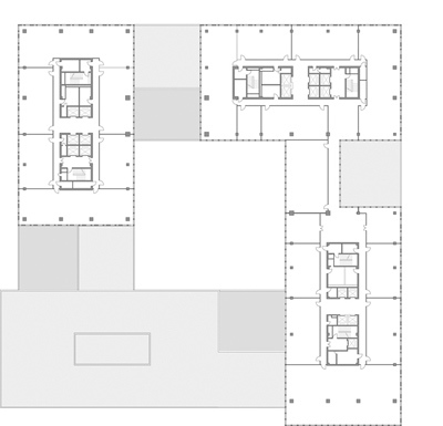
Four office towers (26*45m) with linking bridges and a group of connected roof gardens form a compact block structure around a central courtyard (33*33m).
The building embodies architectural and functional attributes that give emphasis to the urban hierarchy. Each tower is individually corresponding with height and orientation to surrounding urban space, the courtyard opens onto the main road and welcomes visitors to an intimate space with three floors of commercial use and good accessibility.
The buildings cost-effective structure is based on an office space related 1.35m grid. It is eventually reflected in the facade with only two types of window modules, serving at the same time as elements to underline the architectural appearance of the building. Grid and spatial concept for the offices meet the requirements of flexibility and convertibility imposed on buildings today.
Info:
Location: Zhong Guan Cun South Road, Haidian District, Beijing
Total Floor Area: 12.400 sqm
Built Area: 120.000 sqm
Floor Ratio: 6.69
Design Time: 2003-2004
Time of Completion: 2006
Author: 9.3 Group, Strategy Architectural Design Co., Ltd,
Cooperation with Otto Steidle
- Any
- 2006













