Chaowai Men
Chaowai Men
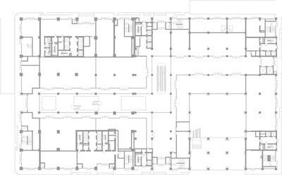
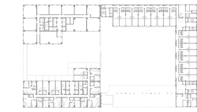
This building is located in downtown Beijing's Central Business District. The urban environment around the site is representing various architectural characters. The theme of "Unity and Diversity" is a particular challenge in this architectural and urban context. A twin tower was adopted to make up the city block and form the inner garden courtyard. The architects created this common area with wooden terraces, offering an invitation to sit down and drink tea on the roof of the commercial space. The building complex is composed for several functionalities, such as office, apartment and commercial. The building layout demonstrates the architect's intention to organize these functional areas in such a way that they can be turned into a series of flats without much difficulty.
A classical building façade has been adopted instead of a glass curtain wall system in aims of building cost and energy saving. The façade system is based on a 2,1 meter grid and is making use of only three types of windows. At the same time the shape and colour contrast creates a distinctive architectural character.
Info:
Location: Chaoyang Road, Chaoyang District, Beijing
Total Floor Area: 13.680 sqm
Built Area: 12.000 sqm
Floor Ratio: 5.77
Design Time: 2002-2004
Time of Completion: 2006
Author: 9.3 Group, Strategy Architectural Design Co., Ltd
Consultants: Otto Steidle and Martin Klein
- Any
- 2006
- Estat del projecte
- Disseny













