Nine Five Beijing Cuisine
Project name: Nine Five Beijing Cuisine (The Mixc, Chengbei, Hangzhou)
Client: Sansheng Future Group
Design firm: AD ARCHITECTURE (http://www.arch-ad.com/)
Email: office@arch-ad.com
Chief designer: Xie Peihe
Location: Hangzhou
Area: 600 square meters
Main materials: stone, glass, wooden flooring, textured paint
Construction firm: Hangzhou Xuxin Architectural Decoration Co., Ltd.
Design time: August 2023
Completion time: November 2023
Photography: Ouyang Yun
AD ARCHITECTURE conceived a new premise for restaurant brand Nine Five Beijing Cuisine, located in The Mixc, Chengbei, Hangzhou, which fuses the Oriental elegance rooted in the brand’s genes and the cultural context of the city to create a dining destination that seems to naturally grow from its setting and offers a dining experience infused with a sense of ceremony.
“Through humility and concession, restraint and boldness, modernity and liveliness, fusion and confrontation, architecture establishes connection with the past, future, and nature. It sparks imaginations about Eastern culture, conveying the emotional essence of the East that I wish to express.” explained Xie Peihe, the chief designer.
Taste and nourishment
Established in 2017, Nine Five Beijing Cuisine is a modern Chinese dining brand affiliated to Sansheng Future Group. It is a new-style contemporary restaurant specializing in Beijing cuisine and also serving Hunan and Cantonese food. The brand is dedicated to crafting each dish with precision, aiming to bring out the authentic flavor of each ingredient, fueled by a spirit of altruism and craftsmanship. It prioritizes high-quality ingredients, flavors, and a lively ambience. The restaurant brand not only brings back the flavors in people’s memories but also promotes the rich culinary heritage of Chinese cuisine. It harmoniously blends traditional Chinese charm with contemporary dining philosophies, with taste as its top priority and nourishment as its goal.
A strong spatial identity serves as a pivotal element in crafting the brand experience. The dining space, integral to the overarching experiential journey, communicates the brand's philosophy and social responsibility well before the culinary offerings. Drawing inspiration from the brand's cultural ethos, the space design effortlessly fuses Oriental and contemporary sensibilities. Employing classical and coherent spatial principles, the design conveys a contemporary Oriental aesthetic, embodying a consistent design strategy and upgraded practices of AD ARCHITECTURE.
Humility and concession
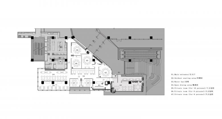
Entrance
The entrance of the restaurant is located on an outdoor terrace of a shopping mall, creating a vibrant street-side commercial ambiance and giving a novel illusion to the second-floor locale. Previously a nondescript platform space, it has been transformed with the addition of low walls, defining a new spatial realm and bringing a touch of warmth. This deliberate design effectively communicates Nine Five Beijing Cuisine’s dedication to embracing nature and cultural heritage, leaving an impression on customers even before they enter the space.
An urban courtyard enclosed by bamboo and the low walls amplifies the emotional essence of an Eastern lifestyle. The geometric building blocks are arranged in order, while the diverse stone lion sculptures, each with its unique shape, symbolize good fortune and joy. The entrance, kicking off an exploration from the outside, strikes a balance between privacy and openness, captivating visitors from the outset.
Corridor
A corridor twists and turns, guiding visitors through diverse scenes. The bamboo elements extend through glass, hiding the main dining area within the space. The distant ambiance of the restaurant inspires curiosity, while the narrow corridor adds a profound sense of mystery to the surroundings. Using a logic that progresses from small to large spaces, the corridor enhances the feeling of exploration and emphasizes an unintentional design language that subtly recurs throughout the area, creating a nuanced spatial context.
Modernity and liveliness
Hall
The view outside the window, combined with the fresh air and sunlight, creates a play of light and shadow through wooden grilles, giving a sense of openness to the space. By incorporating natural elements, the space becomes more dynamic and alive with the passage of time.
The Chinese kitchen, designed with an open layout, displays a Peking duck oven and ingredients, creating a traditional, lively culinary atmosphere. The air is filled with the aroma of Peking duck and burning wood, creating an emotional atmosphere of nostalgia in the beautiful natural surroundings.
Private rooms
The essence of the East involves a yearning for nature and culture. Yet the spatial environment of the mall where the restaurant sits fails to capture this essence. However, strategically placed plants and high walls effectively create a sense of outdoor extension, crafting a suitable illusion to the restaurant space. The old elements in the space quietly integrate with a subtle presence, harmoniously blending without contention. They peacefully coexist with the space, culinary offerings, and other elements, fostering a friendly spatial realm.
AD ARCHITECTURE has crafted a unique Chinese catering space that fosters a deep appreciation for culinary culture, akin to the appreciation found in other cultural pursuits. This thoughtful design contributes to an immersive hospitality experience that resonates with tourists, the local community and the broader city, and will further cultivate diverse dining scenes and perpetuate cultural richness.
Fusion and confrontation
“A riot of blooms begins to dazzle the eye; Amid short grass the horse hoofs can barely be seen.” This is a verse extracted from the famous ancient poem “On Qiantang Lake in Spring” by Bai Juyi. Throughout history, Hangzhou has been depicted with captivating allure by numerous ancient poets. Bai Juyi’s portrayal of Hangzhou captures a unique blend of carefree indulgence and refined elegance, while Zhang Dai's depiction infuses the city with a poetic ambiance. In the contemporary era, Hangzhou’s burgeoning Internet economy exemplifies its new potential. Throughout, the city’s business and culture coexist in harmonious synergy.
Filtered through glass, sunlight engages with the furniture, dishes, materials, colors and people in the space throughout the day, creating chemical reactions, stories, and emotional narratives. Vivid life scenarios unfold in the commercial setting, nurturing memories and sentiments. The space blends a sense of tranquility and friendliness enriched with family love and friendship, serving as a medium for communication and sharing.
- Any
- 2023
- Estat del projecte
- Construït












































