Bildungscampus Oberwart
Morgens lernen die Kinder in der Volksschule Rechnen, nachmittags in der Musikschule Klavierspielen. Und abends treffen sich die Vereinsmitglieder der Stadtkapelle zum Musizieren. Der neue Bildungscampus in Oberwart ist ein lebendiges Haus für die ganze Stadt. Der Bürgermeister und der Amtsleiter bewiesen bei diesem ambitionierten Projekt viel Engagement, lobten einen offenen Wettbewerb aus und besuchten mit uns vor dem Planungsstart gute bestehende Schulen. So ist ein hochwertiger, großzügiger Lernort gelungen.
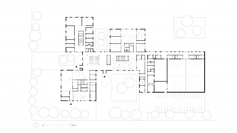
Die dreigeschoßige Aula ist der zentrale Baustein in der Mitte des Bildungscampus und lässt sich mit den großzügigen Sitzstufen auch für Veranstaltungen nutzen. Im offenen Erdgeschoß treffen sich die Schüler:innen in der Früh, zum gemeinsamen Mittagessen und am Nachmittag zum Musizieren. Auch die Nachmittagsbetreuung nutzt diesen großzügigen Raum und ist allseitig zum Grün hin orientiert. In den oberen Geschoßen setzt sich die gemeinsame Mitte fort, mit dem identitätsstiftenden Lern- und Bibliothekshäuschen.
Jeweils vier Klassen bilden zusammen einen Cluster – eine kleine, abgeschlossene Einheit, in Anlehnung an die Dorfschulen der Umgebung. Insgesamt fünf solcher Dörfer gibt es in der Schule. Diese teilen sich jeweils Garderobe, Arbeitsküche mit Platz für den gemeinsamen Schulalltag und eine Loggia. Hell und transparent bilden sie eine vertraute Einheit für 100 Kinder.
Die große, lichtdurchflutete Doppelturnhalle sowie der Judo-Bewegungsraum mit Boulderwand sind für größere Veranstaltungen ausgelegt, folgen der Tradition Oberwarts als aktive Stadt des Sportes und runden den neuen Bildungscampus ab.
- Any
- 2025
- Estat del projecte
- Construït
- Client
- Stadtgemeinde Oberwart
- Equip
- Lucie Vencelidesová (TL), Carla Kuhn (PL), Andreas Reuter (PL), Luisa Feldrapp, Julia Hottenbacher, Alba Keneta-Mandija, Tanja Marben, Lucie Najvarova, Ema Hočevar, Clara Linsmeier, Sindi Como, Jakob Fichter
- Statik & Bauphysik
- RWT Plus
- Gebäudetechnik
- ZFG-Projekt
- Landschaftsplanung
- Simma Zimmermann
- Brandschutzplanung
- Norbert Rabl














