4. Aachener Gesamtschule
Sandkaulstraße 75, Aachen, Germany
Die 4. Gesamtschule Aachen befindet sich inmitten einer Wohnbebauung, welche städtebaulich als Blockrandbebauung zu verstehen und zu achten ist.
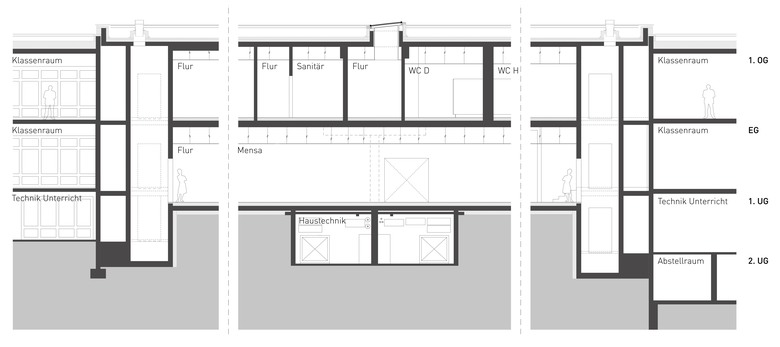
Auf dem Areal bleiben die beiden Bestandsgebäude – die „Turmhäuser“– erhalten. Der zwischen ihnen platzierte Neubau vervollständigt nicht nur das städtebauliche Gesamtkonzept, sondern stellt auch das funktionale Bindeglied dar. Auch der Neubau der Sporthalle legt sich bewusst in die Bautenfolge und unterstützt den Zuweg zum Schulkomplex.
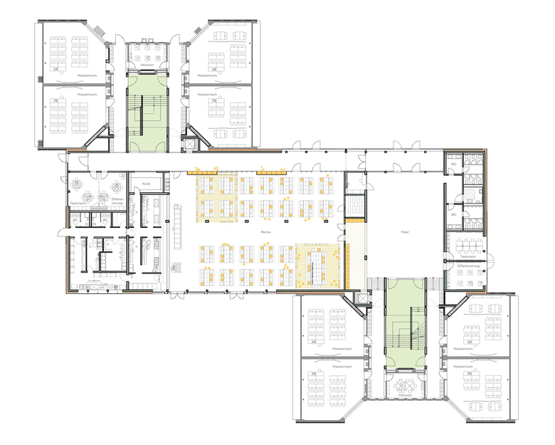
Die funktionale Ordnung der Schule orientiert sich an dem besonderen pädagogischen Konzept der 4. Gesamtschule. Jedes der beiden Turmhäuser beherbergt in jedem seiner zwei Geschosse Räume für Lehrer und Klassen, welche sogenannte „Teams“ bilden. Die Teams differenzieren sich durch farblich
unterschiedlich gestaltete Räume voneinander. Herzstück der Teams sind die Teamquader – großflächig verglaste Räume, in welchen die Lehrer arbeiten, den Schülern jeder Zeit zur Verfügung stehen und ihnen größtmögliche Transparenz bieten. Sitznischen sowie Lerninseln in den Fluren unterstützen diese gemeinschaftliche Lernatmosphäre und schaffen eine hohe Aufenthaltsqualität.
Das großzügig gestaltete Foyer wird zum zentralen Ort der Begegnung – nicht nur für den Schulbetrieb.
Die gemeinschaftlich genutzten Bereiche im Neubau von Foyer, Mensa sowie Mensagarten sind Kommunikationsflächen für das gesamte Ensemble. Große Glasflächen ermöglichen die Verbindung von Innen- und Außenraum und setzen die helle und positive Lernatmosphäre im Neubau fort.
Gemeinsam mit den Freibereichen des Eingangsvorplatzes und dem Mensagarten entsteht unter Einsatz einer hellen Ziegelfassade eine kompakte Gesamtfigur. Ergänzt und gerahmt durch Baumbestand und Grünanlagen wird sie so zur Lerninsel im begrünten Stadtblockinneren.
- Architects
- KRESINGS
- Any
- 2016
- Estat del projecte
- Construït
- Client
- Stadt Aachen
- Team
- Rainer Maria Kresing (Projektpartner), Kilian Kresing (Projektpartner), Thomas Vöge (Projektleitung), Timm Schlarmann, Raúl Zinni-Gerk, Frank Küllertz (Ausschreibung), Hubertus Holle (Bauleitung), Tilo Pfeiffer
- Tragwerksplanung
- gantert + wiemeler ingenieurplanung, Münster
- Baugrundgutachten
- H. Dieler & Partner GmbH, Aachen
- Prüfstatik
- Thomas & Bökamp Ingenieurgesellschaft mbH, Münster
- Haustechnik HLS
- DS-Plan Ingenieurgesellschaft für ganzheitliche Bauberatung und Generalfachplanung mbH, Köln
- Haustechnik ELT
- E-C-K Ingenieure GmbH, Brühl
- Brandschutz
- BFT Cognos GmbH, Aachen
- Bauphysik
- GRANER + PARTNER Ingenieure, Bergisch Gladbach
- Landschaftsarchitektur
- RMP Stephan Lenzen Landschaftsarchitekten, Bonn
- Aufzugplanung
- UPDOWN Ingenieurteam für Fördertechnik GmbH, Hürth
- Küchenplaner
- HÖRSTKE Großküchen/Einrichtungen GmbH













