Alaker SPA House

Xi'an, China
overview of spa house
Fotografia © Liu Nannan

Wellness-oriented spaces have become more than just places for pampering and relaxing during the global pandemic. The value of feeling safe and well has never been higher, and Atelier Right Hub has been galvanized by the call to create multi channel experiences that connect emotions, senses, and contexts.

Royal Angel beauty is a leading practice of holistic beauty care in China. The new type of clinic saw a unity of two aspects of its business – service of high-end anti-aging beauty and service of women’s health & SPA.

Royal Angel beauty’s owner approached Atelier Right Hub for the flagship store in Xi’an – Alaker Spa House. Situated in the 19th floor space of a commercial mansion located southeast by Qujiang pond in Xi’an. This results in an exceptional customer journey – a relaxed, private, and specialised medical experience for Royal Angel Beauty of its chain clinic based in Xi’an – through an integrated approach from visioning, interior design, styling, to brand and visual identity consulting.

The site itself is a traditional building with network of columns, but the architects have inventively designed the entrance and lobby as a black color space in sharp contrast with the bright color space of the entire interior, creating an alternating rhythm that leads the customers into a quiet atmosphere. Such a gradual spatial progression is also a metaphor for psychological changes. The architects designed the entrance and the entire interior layout, which consist of different curves, the concept was actually inspired by Qujiang pond and the clouds reflected in it. Atelier Right Hub seized the opportunity to probe into human’s mental behaviors, as that our interior design for the SPA house aims to create the immersed experience for customers to relax completely.

The architects employed the material in the interior with restraint, such as oak, texture paint, acrylic plate etc., the dropped ceiling is made of continuous use of curved acrylic plates, which runs through the entire interior space like clouds. With its inviting combination of streamlined wall and curved acrylic plate dropped ceiling, the design transforms the existing square space while leading customers to naturally follow a streamline flow. The architects have cleverly created the sense switching of the public and private spaces for customers by opening and closing 6 huge curved sliding doors. The large panoramic windows, in lounge area, offer the customers a stunning view of the downtown and Qujiang pond while tasting tea and relaxing. Sunlight is brought deep into the space, which looks clean and bright.

A featured ceremonial walk was designed to take customers to the private beauty clinic rooms and spa-like service spaces, enhancing the streamlined experience and giving back the best natural attributes to its customers while initiating a calming and entrusting environment. Special lights are required for injection rooms, so clinic rooms are planned along the inner side of the plan.

Space planning is the key. The use of neutrals, solids and transparency all became the strategy to create holistic physical and emotional experiences built on consistent respect for health, while bringing a sense of warmth and a friendlier, calmer user-centric experience.

reception area detailed view
Fotografia © Liu Nannan
from black foyer to light lounge
Fotografia © Liu Nannan
the streamlined corridor
Fotografia © Liu Nannan
the lounge area with like clouds floating in the sky
Fotografia © Liu Nannan
introduce natural light into interior spaces
Fotografia © Liu Nannan
the column is inserted obliquely into the acrylic ceiling
Fotografia © Liu Nannan
the sense switching of the public and private spaces by opening and closing the huge curved sliding doors
Fotografia © Liu Nannan
the sense switching of the public and private spaces by opening and closing the huge curved sliding doors
Fotografia © Liu Nannan
the lounge bar
Fotografia © Liu Nannan
the corridor from lounge to spa rooms
Fotografia © Liu Nannan
the corner space is similar to caves
Fotografia © Liu Nannan
the spa room
Fotografia © Liu Nannan
the invisible door to spa room
Fotografia © Liu Nannan
details of spa room
Fotografia © Liu Nannan
details of bathroom
Fotografia © Liu Nannan
details of shower
Fotografia © Liu Nannan
the corridor leads customers to naturally follow a curved flow
Fotografia © Liu Nannan
the office
Fotografia © Liu Nannan
vip reception area
Fotografia © Liu Nannan
city view balcony
Fotografia © Liu Nannan
details of silicone neon strip
Fotografia © Liu Nannan
details of acrylic plate ceiling
Fotografia © Liu Nannan
analysis of spatial functional layout
Visualització © Atelier Right Hub
project location
Fotografia © Atelier Right Hub
analysis of spatial functional layout
Visualització © Atelier Right Hub
analysis of spatial functional layout
Visualització © Atelier Right Hub
analysis of spatial functional layout
Visualització © Atelier Right Hub
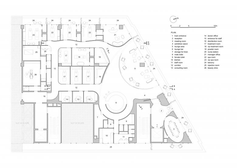
plan
Dibuix © Atelier Right Hub
AA Elevation
Dibuix © Atelier Right Hub
BB Elevation
Dibuix © Atelier Right Hub
CC Elevation
Dibuix © Atelier Right Hub
Architects
Atelier Right Hub
Any
2023
Estat del projecte
Construït

Projectes relacionats 

  • Gymnasium Schulstraße
    Kronaus Mitterer Architekten
  • GROHE Water Experience Center
    D’art Design Gruppe GmbH
  • Limmatquai 4
    Kästli Storen
  • Volksschule Erlaaer Schleife
    Kronaus Mitterer Architekten
  • Ortsdurchfahrt Domat/Ems
    Luminum GmbH

Revista 

Altres projectes per Atelier Right Hub 

Sound Therapy of Singing Bowl|Soul Realm SPA House
Hangzhou, China
Mymory Boutique Hotel
Hangzhou, China
The Patio House
Ningbo, China
Wu Residence
Hengdian, China
Mirror Cube Hair Salon
Hangzhou, China