The Patio House
Ningbo, China
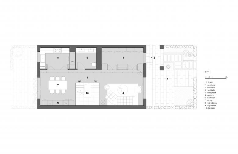
Atelier Right Hub recently completed a 350 square-meter private residence in a high-end villa community in Ningbo. The client’s mandate was simple: “Give me three bedrooms, the remaining space is kept transparent, and this project that will challenge the conventional notion of what a house should be.” Rising up to this challenge, the architects initiated the project by questioning the fundamentals of the “house” typology itself, asking themselves: How can we free up the plan and make it feel light? What is the relationship between the communal and private? When and how should privacy be maintained, if at all? What are the essential and non-essential program components that make a “home”? What is domesticity?
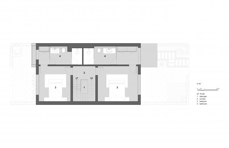
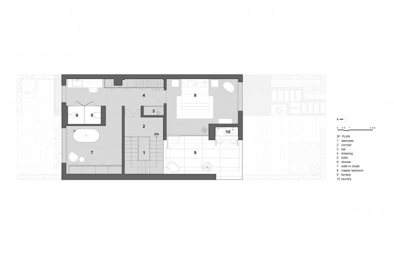
Instead of adding more space, the architects took an opposite approach- cutting a square opening from basement to roof between the main floors in the middle of the west side. The 1:1 aspect ratio reminds one of the typical light shaft in those southern traditional houses. Enclosed with transparent glass, Sunlight shed into the interior space at the center with a gentle touch. With the move of sunlight, the glass box glows from bright to dim; The light shaft formed the inner concentricity of the house.
The height of the shaft vertically synthesizes the four floors, and the depth of it redistributes the forms of space horizontally. By implanting such a light shaft, allows the celebration of air and light and also interweaves the split floors, enriches the spatial experience of domesticity.
The architects employed the material in the interior with restraint. The use of black wooden plank as the “wall” split the first floor into two compartments on the axis from north to south. The black wooden planks were transfigured into cabinets and doors, and the lead spread on the first floor vestibule. By opening invisible doors along the black wooden plank wall, the different functional rooms were presented. The palette of black and white gives the home a tranquil tone.
Project video links: https://vimeo.com/423901622
- Architects
- Atelier Right Hub
- Any
- 2020
- Estat del projecte
- Construït
- Client
- DAI Wenwen
- Team Atelier Right Hub
- Gong Jian (Principal Architects), Liu Meng (Principal Architects), Zhang Jie (Architectural Designer), Ling Huihong (Interior Designer), Chen Qian (FF&E Designer)
- Contractor
- Adler International Design
- MEP Consultant
- Ningbo Fuhui Environmental Technology Development Co., Ltd.
- Lighting Consultant
- Yaank Lighting Design
- Interior Furniture
- DEMA, Bontempi, Driade, Magis
- Other Products
- Moorgen, Bosch, Bang&Olufsen, Moloney Fireplace, Hermes Wallpaper, X+Q Art, Ugan Concept, Italian Armored Door
- Interior Fixtures & Fittings
- Duravit





























