Amtshaus III Teilinstandsetzung

Lindenhofstrasse 21, Zürich, Switzerland
Amtshaus III - Kopfbau zur Uraniastrasse ca. 1965
Fotografia © BAZ Fritz Maurer

Das Amtshaus III wurde zusammen mit den Amts-
häusern I, II und IV in den Jahren 1910-1914 als Teil
einer grossen städtebaulichen Vision im Zentrum
Zürichs von Gustav Gull erbaut. Von 1998-2003 erfuhr
das Amtshaus III eine Gesamtsanierung unter Betrieb
und in Etappen.
Seither sind diverse kleinere Instandsetzungsarbeiten
und Umbauprojekte ausgeführt worden. Die nächste
Gesamtsanierung steht in 15-20 Jahren an. In der
Zwischenzeit soll das Gebäude nach dem Auszug der
heutigen Nutzenden teilinstandgesetzt werden.

Die ursprüngliche Winde im Kopfbau des Amtshaus III
wurde in mehreren Schritten mit erheblichen strukturel-
len Massnahmen zu heute wertigen Arbeitsräumen
transformiert. Dabei entzog sich dieser Raumbereich
anlässlich der langjährigen Umbauarbeiten durch
Martin und Elisabeth Boesch ihren sorgsam formulier-
ten Spielregeln im Zusammenhang mit der Gullschen
Lektüre. Für einen weiteren Zeitraum bis zur Gesamt-
instandsetzung sollen die Räume abermals im ge-
samten Gebäude für Bedürfnisse der Stadtverwaltung
nach dem worksmart-light-Konzept eingerichtet und
genutzt werden können – so auch im 5.Obergeschoss.

Strukturell nicht benötigte Einbauten werden rückge-
baut und damit der lokal eingeengt wirkende Dach-
raum angemessen aufgebrochen. Innerhalb des über-
geordneten Raumperimeters wird der Dachstuhl als
sinnstiftendes Merkmal eines Dachgeschosses stärker
freigelegt, an den sichtbaren Raumkanten verdeutlicht
und so ein zusammenhängendes, räumliches Ord-
nungsprinzip geschaffen. Mit einem clin d'oeil ist die
logische Kraftableitung in der Dachstuhlmitte wieder
erfahrbar und dient als Anker für die Stehbar. Auf
tiefergreifende Massnahmen wird anlässlich dieser
Teilinstandsetzung verzichtet, um einem zukünftigen
Ausbau des gesamten Dachraums nicht vorzugreifen
(vgl. AH IV). Das Gebot der Reversibilität hat weg-
weisenden Stellenwert.

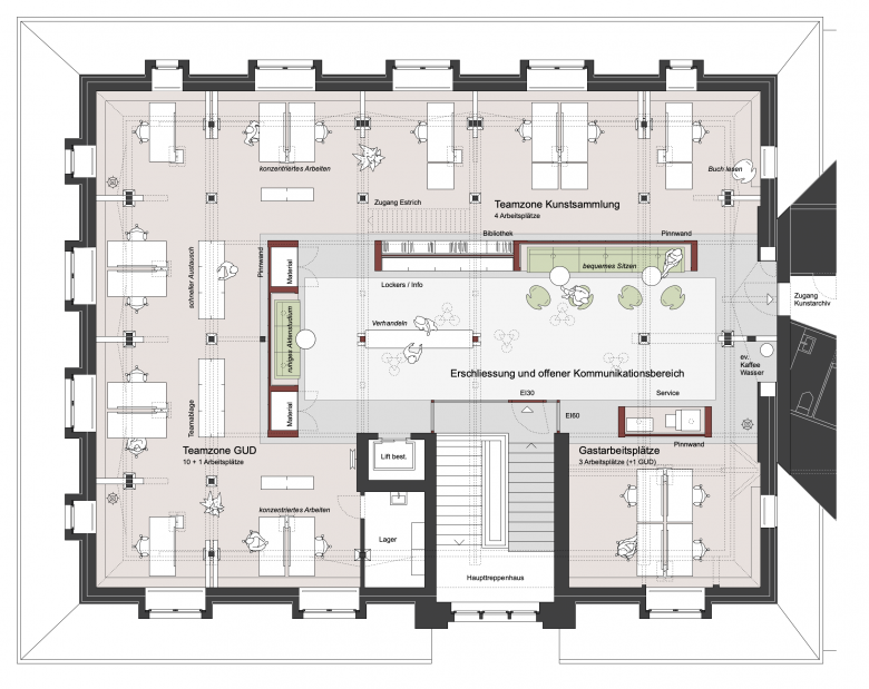
Vier raumhaltige, hölzerne Einbauten fluchten unter
den Kanten des überhöhten Dachraums, lenken den
Bewegungsfluss und gliedern den neu zusammenhän-
gend wahrgenommenen Raum in einen mittig gelege-
nen Kommunikations- und einen peripheren Arbeits-
bereich. Die Setzung der Einbauten, ihre Ausdehnung
und Höhe erlauben sowohl ein konzentriertes ungestör-
tes Arbeiten als auch ein lebendiges, individuelles Mit-
einander in der durchmischten Erschliessungs- und
Kommunikationszone. Die Einbaumöbel sind modular
konzipiert und nehmen die spezifischen Anforderungen
des Raumprogramms wechselweise auf. Dem Trep-
penhaus ist ein durchlässiges Kupplungsstück in der
Logik der Einbaumöbel angedockt, um zwischen den
aufeinanderprallenden Geometrien des Tonnenge-
wölbes und des hohen Dachraums zu vermitteln. Mit
der vorgeschlagenen Raumordnung kann nicht nur
die Grösse der Teamzonen, der Bereich der Gäste-
arbeitsplätze, sondern auch der Kommunikations-
bereich flexibel variiert werden.

Bei der Wahl des Materials greifen die Bösch’en
Spielregeln aus der Zeit der Hauptintervention im
Amtshaus III. Als wesentliches Merkmal der Arbeits-
räume ist das Deckenrelief als Spiel zwischen rusti-
kalem, grau lasiertem Dachtragwerk in Reminiszenz
zur ursprünglichen Winde und feinen, vollflächig ein-
gefügten Akustikprofilelementen prägend. Die Böden
erhalten einen Linoleumbelag im warmen Rot gebran-
nter Erde. Die der Erschliessungsräume werden
hierarchisch mit Feldern in hellerem und Friesen in
dunklerem Grau betont. Die Wärme des Holzes, das
als Leitmaterial durch das Haus begleitet, wird mit
den raumbildenden Einbauten fortgeführt. In denen
sind die mit textilen Polsterungen ausgekleideten
Nischen zum bequemen Sitzen und Füllungen aus
Korkschrot als akustisch absorptionsfähige Pinn-
wände eingebettet. Über all dem steht der Einfall des
Tageslichtes, welches in die Tiefe des Hauses geführt
wird und im Dachgeschoss gleichmässiger verteilt ist
– so auch für die dreiseitige Wandfüllung im überhöh-
ten Raumbereich, die ein schwebendes Eigenleben
zu führen scheint und als willkommener Kunstträger
sublimiert werden kann.

Der Dachraum ist ab dem 5.OG zu einem einzigen
Brandabschnitt zusammengeführt. Die Kalträume und
die Technik bleiben zur Inspektion zugänglich. Dafür
kann die motorisiert betriebene Hebetreppe durch eine
unscheinbare, betriebsarme Estrichtreppe ersetzt wer-
den. Als hindernisfreier Zugang für das 5.OG erweist
sich der Aufzug bei den Eingängen an der Lindenhof-
strasse 23 / Werdmühlestrasse 10 als möglich. Beide
Zugänge sind entsprechend ausbaufähig. Ein Treppen-
lift zwischen Teamzone und Kunstsammlung kann intern
die Abteilung hindernisfrei erschliessen und schafft die
Brücke zu besagtem Lift.

Übersichtlicher Erschliessungs- und Kommunikationsbereich für den täglichen Austausch
Visualització © studio 12
Offene Teamzone für konzentriertes Arbeiten unter dem ordnenden Dachstuhl
Visualització © studio 12
Längsschnitt durch die Erschliessungszone
Dibuix © nik biedermann architekt
Querschnitt
Dibuix © nik biedermann architekt
Grundriss Dachgeschoss
Dibuix © nik biedermann architekt
Architects
nik biedermann architekten gmbh
Any
2022
Estat del projecte
En construcció
Programm
Städtisches Verwaltungsgebäude
Bauherr
Stadt Zürich
Baurealisation
dierealisatorin.ch gmbh
Rauminhalt SIA 416
-
Gebäudekosten BKP 1-9
ca. Fr. 19Mio
Planerwahlverfahren, selektiv
2022, 1. Rang
Ausführung
2022 - 2026

Projectes relacionats 

  • Eissporthalle Davos
    WALTER BIELER AG
  • Moos
    playze
  • Reiters Reserve Premium Suiten
    BEHF Architects
  • Erweiterung und Instandsetzung Hallenbad Altstetten
    MIYO Visualisierung
  • Neubau von fünf Einfamilienhäusern
    Bäumlin+John AG

Revista 

Altres projectes per nik biedermann architekten gmbh 

Instandsetzung / Umnutzung Städtische Poliklinik
Zürich, Switzerland
Umbau Schopf Sterneggweg
Meilen (ZH), Switzerland
Machbarkeitsstudie Villa "Guggenbühl"
Herrliberg (ZH), Switzerland
Umnutzung "Haus zur Sul"
Zürich (ZH), Switzerland
Umbau und Instandsetzung Schulanlage Gubel A
Zürich (ZH), Switzerland