Umnutzung "Haus zur Sul"

Zürich (ZH), Switzerland
Fassadenansicht
© Roger Frei

Das Haus “zur Sul” an der Neustadtgasse 11 direkt gegenüber dem Grossmünster gelegen, ist im kommunalen Inventar schützenswerter Bauten erfasst und steht unter Denkmalschutz. Ursprünglich erwarb die Grossmünsterstiftung 1419 das Haus mit samt der Hofstatt und dem Gärtlein. Von 1522-25 war die Amtswohnung von Huldrich Zwingli einquartiert. Seit 1906 wird im Gebäude eine Kinderkrippe betrieben.

Aufgrund der tiefgreifenden Veränderungen während vergangener Jahrhunderte, kann heute nicht mehr von einem ursprünglichen Zustand der Raumstruktur im Haus «zur Sul» gesprochen werden. Vielmehr entstand ein heterogen gewachsenes Konglomerat von Einbauten, gebildet aus pragmatisch gefügten Bauteilen verschiedener Zeiten. Aus diesen sollen die Vorzüge für einen erneuten Eingriff, mit der Absicht zur Umnutzung in Wohnungen, subtil herausgefiltert werden. Dabei sind historisch relevante Primärstrukturen gleichermassen von Bedeutung wie später dazugekommene Einbauten aus den 1950er Jahren. Sie dienen als willkommene Referenz für ein interpretatives «Weiterbauen».

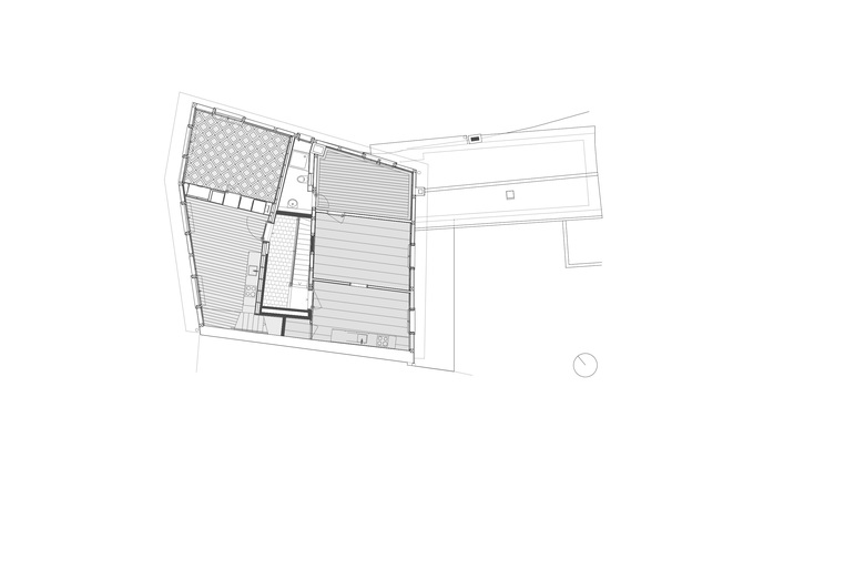
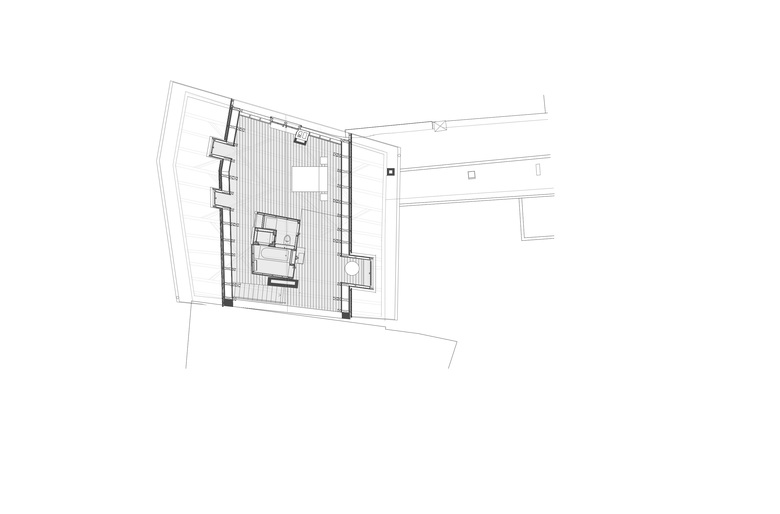
Die vertikale Erschliessung im Gebäude wird beibehalten und die Räume der neuen Wohnungen innerhalb der prägenden Tragstruktur eingebettet. Historisch wertvolle oder gut dimensionierte Räume bleiben bestehen und werden in die neu entwickelten Grundrisse integriert. Die Haupteingriffe konzentrieren sich dabei auf den Einbau der Nebenräume, die entlang der Erschliessung angeordnet werden und auf den Ausbau des Dachgeschosses. Wohnräume und Küchen liegen gut belichtet an den Fassaden; die Nebenräume schaffen Distanz zwischen den Wohnungen. Die Kleinteiligkeit und die niedrigen Zimmerhöhen werden mit räumlich weitläufigen oder geschossübergreifenden Wohnungen kompensiert, um allen Wohnungen bestmögliche Besonnung zu gewährleisten. Zimmer unter den Giebeln können in den Dachraum geöffnet werden, so dass sich die teilweise schmalen Raumverhältnisse auf attraktive Weise entspannen. Der Charme der Wohnungen wird massgeblich von der noch vorhandenen Materialisierung der Raumoberflächen und den Parkettbodenbelägen abgeleitet.

Signifikantes Merkmal des Innenhofes ist die gegenüber dem Hofausgang leicht erhöhte neue Gartenterrasse. Als Reminiszenz zum Zustand der liebevoll angelegten Hofgärten um 1896 ist diese umseitig mit Sandsteinmauern gefasst, und in gebührendem Abstand zu den umliegenden Wohnräumen verankert.

Fassadenansicht Neustadtgasse
Fotografia © Roger Frei
Katasterplan um 1896
Fotografia © Roger Frei
Fotografia © Roger Frei
Fotografia © Roger Frei
Fotografia © Roger Frei
Fotografia © Roger Frei
Fotografia © Roger Frei
Fotografia © Roger Frei
Fotografia © Roger Frei
Fotografia © Roger Frei
Fotografia © Roger Frei
Fotografia © Roger Frei
Fotografia © Roger Frei
Fotografia © Roger Frei
Fotografia © Roger Frei
Fotografia © Nik Biedermann
Fassadenansicht 1900-1968
Grundriss Dachgeschoss
Grundriss 2.Obergeschoss
Grundriss 1.Obergeschoss
Grundriss Erdgeschoss
Schnitt
Revisionsplan Grundriss Erdgeschoss
Revisionsplan Schnitt
Architects
nik biedermann architekten gmbh
Any
2017
Estat del projecte
Construït
Programm
Einbau von 6 eigentümlichen Kleinwohnungen
Auslober
Gemeinnütziger Frauenverein Zürich GFZ
Architekten
nik biedermann architekt
Rauminhalt SIA 416
ca. 2'180 m3
Gebäudekosten BKP 1-9
ca. Fr. 3'200'000.-
Konzeptstudie auf Einladung
2013, 1. Rang
Ausführung
2014-17

Projectes relacionats 

  • Moos
    playze
  • Reiters Reserve Premium Suiten
    BEHF Architects
  • Erweiterung und Instandsetzung Hallenbad Altstetten
    MIYO Visualisierung
  • Neubau von fünf Einfamilienhäusern
    Bäumlin+John AG
  • The Forge in der 105 Sumner Street in London
    Kiefer Klimatechnik GmbH

Revista 

Altres projectes per nik biedermann architekten gmbh 

Instandsetzung / Umnutzung Städtische Poliklinik
Zürich, Switzerland
Amtshaus III Teilinstandsetzung
Zürich, Switzerland
Umbau Schopf Sterneggweg
Meilen (ZH), Switzerland
Machbarkeitsstudie Villa "Guggenbühl"
Herrliberg (ZH), Switzerland
Umbau und Instandsetzung "Haus zum Kiel"
Zürich (ZH), Switzerland