Ausbildungshalle in Magglingen
Magglingen, Switzerland
Wettbewerb 2017, 2. Rang
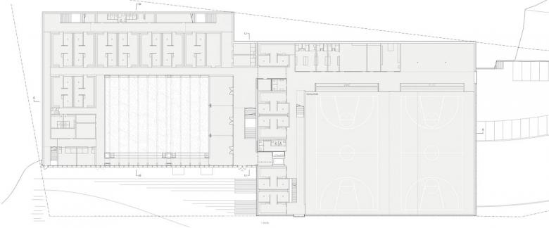
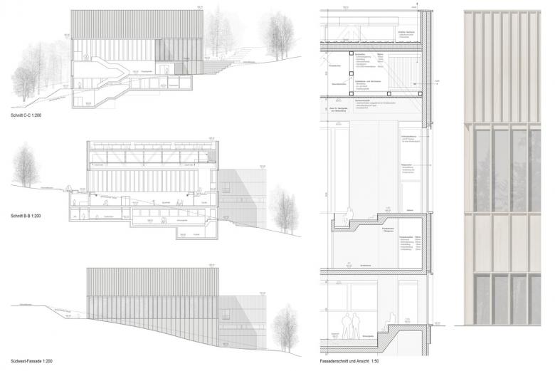
Der einfache und klare Kubus der bestehenden Sporthalle wird durch einen volumetrisch vergleichbaren Gebäudekörper ergänzt. Dank eines horizontalen wie vertikalen Versatzes der Gebäudekörper kann sich die beeindruckend grosse Gesamtkomposition harmonisch in die Geländekammer einfügen. Die feingegliederte Holzfassade des Neubaus harmoniert mit der Holzverkleidung der bestehenden Anlage und passt sich unaufgeregt in die Idylle der Waldlichtung ein.
- Architects
- arb Architekten
- Any
- 2017
- Estat del projecte
- Construït
- Ingenieurbüro
- Theiler Ingenieure
- Ingenieurbüro
- Amstein+Walthert HLKSE












