Schulhaus in Vaulruz
Vaulruz, Switzerland
Wettbewerb 2014, 3. Rang
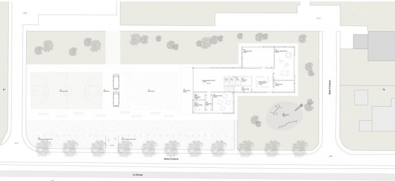
Das Terrain für das neue Schulhausgebäude mit fünf Klassenzimmern für die Unterstufe und zwei Kindergärten liegt in der Talebene in unmittelbarer Nähe des Dorfbaches la Sionge. Mit der aufgelösten Dachgeometrie integriert sich unser Projektvorschlag in die kleinteilige Quartierstruktur der Nachbarschaft, unterstreicht aber gleichzeitig den repräsentativen Charakter eines Schulgebäudes.
- Architects
- arb Architekten
- Any
- 2014
- Estat del projecte
- Construït










