Chinese Commercial Counsellor's Office in Mauritania

Rue Ahmed Ould Mohamed, Nouakchott, Mauritania
Fotografia © unarchitecte

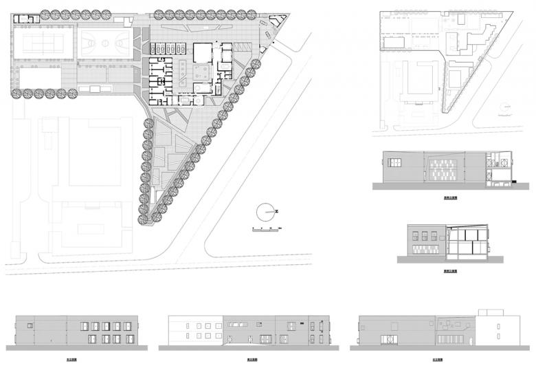
The Counsellor’s office is located in the center of the capital Nouakchott, adjacent to the international school of the French embassy across the street. The shape of site is irregular. Due to historical problems, the use of the field could not be implemented in accordance with the original plan, resulting in a messy overall layout, poor construction quality, incomplete main functions, and a shabby image. So all the parts were completely rebuilt except the apartment building.
Through rational planning and layout, the site is divided into entrance inspection area, office area, apartment area, sports area, greening and planting area, etc., so as to improve the use of office area, complete the functions, and form a safe space order; we reformed the landscape environment, transformed the sports field and green field and cleaned the remaining space of the inner courtyard. We kept the original tall trees, set the landscape green area and planting area. With the reasonably moving line, the multiple courtyards and activity spaces were furthest achieved, and we combined the sports field to create a varied and pleasant walking loop, creating a good working and living environment. Optimizing the structure, equipment components, building materials technology, etc., in the same time we prevented uneven settlement, seawater penetration, salt corrosion, termites, wind and sand, and solar radiation.

INFORMATION

Project name: Chinese Commercial Counsellor's
Office in Mauritania
Location: Nouakchott, Mauritania
Architects in charge: ZHANG Hetian, ZHANG Hong
Floor Area: 1613.37m2
Year: 2012-2017
Completion Date: 2017
Photography: ZHANG Hetian

Fotografia © unarchitecte
Fotografia © unarchitecte
Fotografia © unarchitecte
Fotografia © unarchitecte
Fotografia © unarchitecte
Fotografia © unarchitecte
Fotografia © unarchitecte
Fotografia © unarchitecte
Fotografia © unarchitecte
Dibuix © unarchitecte
Architects
unarchitecte
Any
2017
Estat del projecte
Construït

Projectes relacionats 

  • Moos
    playze
  • Reiters Reserve Premium Suiten
    BEHF Architects
  • Erweiterung und Instandsetzung Hallenbad Altstetten
    MIYO Visualisierung
  • Neubau von fünf Einfamilienhäusern
    Bäumlin+John AG
  • The Forge in der 105 Sumner Street in London
    Kiefer Klimatechnik GmbH

Revista 

Altres projectes per unarchitecte 

House L
Changchun, China
Dodo Art Museum
Beijing, China
Climbing Park of Luofu Mountain
Boluo, China
A Walking Box
Nanchang, China
The Forbbiden City Red-Wall Teahouse
Beijing, China