House L
Weifeng Dongyue, Changchun, China
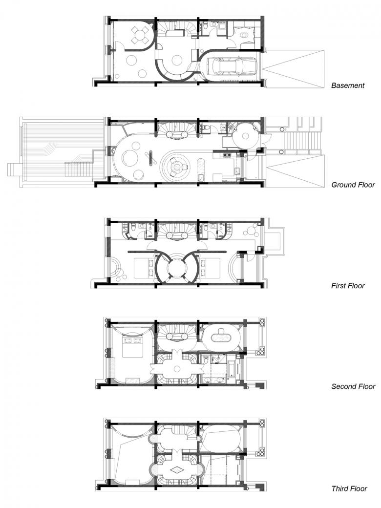
A property bought by our client, seated in a silent and elegant townhouse neighborhood in Jingyue District of Changchun City, is going to be the main residence for her and her two young daughters in the next decade. It was a newly built villa without any fitment or ornament. Its indoor space, long and transparent from north to south, consists of three levels above ground and one underground, among which there are two areas having extra height of course, one situating on the first floor occupying the space of the second one, another on the third level below the middle peak of gable roof. The main entrance faces north, while the open-air private courtyard is in the south. The facade of the house is prohibited from modifying. The proprietress hopes that each young child can have an independent bedroom.
Four principal adjusts were made to the original spatial layout. The first was to combine the redundant part of garage with scattered surrounding spaces to constitute a hub of the floor underground and, in the meantime, to provide mass storing space for considerable belongings of the client and her children. Secondly the extra high space between two girls’ bedrooms on the second level was shaped into an intimate activity space, a tiny castle co-owned by the little princesses. Then a partial fourth level was extended in the extra high center of the third floor, satisfying privy storage needs in further. Finally the staircase was reformed with transparent showcases into an elegant and winding lengthwise channel running through all the five levels of the house.
For a multi-level dwelling with hundreds of square meters, in addition to making full use of the space as much as possible to allow the scale of each functional space appropriate, more important is the overall spiritual temperament. The elegant form and harmonious materials progressively create, level by level, a peaceful environment and an intimate atmosphere.
The architect had researched requirements of different functions of women's homes and children's enlightenment, and comprehensively explored the mobility, relative symmetry, security, ritual sense and visual center of living space. Consequently, the presentation of aforementioned research and exploration is accomplished by the form, surface and volume of arch on the plan and facades of each floor selected as basic elements, by a series of combinations of plain arches, couple arches, superimposed arches and rainbow arches, and by the unitary expression though various materials and corresponding details on
the floors, walls and ceilings. By virtue of the visual tension of arch element, and the dynamic combination of its variations, the whole villa is maneuvered in the transformation, to support and connect each part with a unique rhythm, forming its integral spiritual temperament and space order. This temperament and order has even extended to the south outdoor garden.
The interior space of this mansion is reshaped by combinations of tension, acquiring a clear and continuous readability. For the children, it is not only a cozy home, but also a spiritual paradise for colorful childhood, leading them to explore and to know spatial forms from the perspective of visual consciousness.
INFORMATION
Project Name: House L
Architects: unarchitecte
Website: www.unarchitecte.cn
Email: office@unarchitecte.cn
Architect in charge: Zhang Hetian
Design Team: Zhang Hetian, Sun Qingfeng, Yin Shuangquan, Sun Jihua
Construction Period: 2017-2019
Area: 400 sqm
Address: Villa Area, Weifengdongyue, Changchun City, Jilin Province, China
Photographer: Chai Junhe + Zhang Hetian
Development Company: Miss Li
Construction Company: Jilin Overseas Decoration Engineering Co., Ltd.
MaterialsMarble, Stainless steel, Leather























