Dienstleistungszentrum
Melsungen, Germany
Der Neubau des Dienstleistungszentrums vereint die bisher über die Stadt verteilten öffentlichen Einrichtungen und Serviceangebote an einem zentralen Ort, am unmittelbaren Stadteingeng der Fachwerkstadt Melsungen. Dabei wird das bestehende ehemalige Forstamtsgebäude aus den 60er Jahren in das Gebäudekonzept einbezogen.
Wettbewerb
1. Preis 2008
Fertigstellung
11/2011
BGF
ca. 900 m²
Baukosten
2,5 Mio €
Zusammenarbeit mit
Rüttger Architekten, Melsungen
Fotograf
Andreas Secci
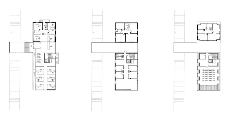
Das alte Forsthaus und der zweigeschossige Neubautrakt werden niveaugleich zu einem Gebäudeensemble zusammengefasst, das über einen gemeinsamen Eingang am zentralen Erschließungsweg erschlossen wird. In seiner formalen Ausbildung nimmt der zweigeschossige Neubaukörper Bezug auf die Gebäudetypologie des angrenzenden Forsthauses und setzt die Breite und Höhe des Bestandsgebäudes fort. In seiner Firstausrichtung orientiert sich der Neubau senkrecht zum alten Forsthaus und interpretiert so die wechselständige Dachlandschaft der angrenzenden Stadtkanten-Bebauung.
Ein zeichenhaftes Rahmenbauwerk legt sich einladend über den Erschließungsweg, definiert den weithin sichtbaren Zugang zum Dienstleistungszentrum und bildet eine zentrale Eingangshalle für beide Gebäude. Durch die inselartige Anordnung des etwas zurückliegenden kompakten Gebäudeensembles kann der Charakter des „grünen Raums“ zwischen Stadtmauer und Fulda erhalten werden.
Zusammen mit dem bestehenden Forsthaus (nun Ordnungsamt) bildet der Neubau mit seinen Nutzungen Bürgerbüro, Zulassungsstelle, und Standesamt einen integralen Bestandteil des neuen Dienstleistungszentrums. Die Erschließung erfolgt über die breite Eingangstreppe sowie über eine an der Gebäudelängsseite angeordnete großzügige Rampenanlage, die in die Gebäudekubatur einbeschrieben wird. Den zentralen Ort innerhalb des Neubaus bildet eine die beide Gebäude verbindende Eingangshalle. Von hier aus können sowohl die Räumlichkeiten des Ordnungsamts als auch die von Bürgerbüro und Zulassungsstelle erreicht werden.
Der Fassadenbehang aus hellem Faserzement wurde als vorgehängte hinterlüftete Fassade konzipiert. Großflächige holzgerahmte Glasflächen kontrastieren zu den geschlossenen Fassadeflächen, lösen den Eingangsbereich vom auskragenden Ober- und Dachgeschoss ab und lassen den Baukörper über der Eingangszone schweben.
- Architects
- pape + pape architekten
- Any
- 2011
- Estat del projecte
- Construït

















