Ersatzneubau Wohnhaus mit vier Wohnungen
Zürich-Höngg, Switzerland
Die Bauparzelle des Neubau liegt direkt unterhalb des Friedhofs Hönggerberg, in letzter bebauter Reihe. Die Nachbarschaft ist geprägt von Einfamilienhäusern in ihren Gärten und kleineren Mehrfamilienhäusern, viele aus den 40er und 50er Jahren. Das eingeschossige Elternhaus der Bauherrschaft mit talseitigem Sockelgeschoss und das identische Nachbarhaus im Westen wurden in den frühen 50er Jahren erbaut. In den 60er Jahren wurde von den beiden Eigentümern gemeinsam ein unterirdischer Garagenbau mit einer markanten talseitigen Sichtbetonansicht und grossen integrierten Pflanztrögen zwischen den Häusern erstellt, der den geschosshohen Terrainsprung von der privaten Zugangsstrasse zum Gartenniveau überbrückt.
Die Bauherrinnen wünschten sich anstelle des bestehenden Einfamilienhauses ein Mehrparteienhaus mit vier Wohnungen: zwei Maisonetten im Erdgeschoss und Sockelgeschoss mit sehr direktem Gartenbezug und zwei Maisonetten im 1. Obergeschoss und Dachgeschoss mit Weitsicht über die Stadt und den Zürichsee. Der bestehende Garagenbau sollte erhalten werden. Eine grosse Herausforderung bestand also darin, die angestrebte maximal mögliche Ausnutzung gut in die Nachbarschaft zu integrieren.
Der faszinierende Kontrast der beiden sehr unterschiedlichen Ausrichtungen der Parzelle, der Weite gegen Süden und zur Stadt hin und der unmittelbaren Nähe zum grünen, baumbestandenen Friedhof im Norden, aber auch die Morgensonne aus Osten und der Sonnenuntergang im Westen und zugleich der Wunsch der Bauherrschaft nach möglichst ‘gerechter’ Zuweisung all dieser Qualitäten, prägten den Entwurf entscheidend.
Der sehr kompakte zweigeschossige Baukörper mit Sockel- und Dachgeschoss fügt sich trotz der vier Wohneinheiten gelassen in seine Umgebung ein. Er weist an seinen Flanken je einen leichten Knick auf, um die Frontalität auf die nahen Nachbarhäuser zu entschärfen und den Blick von innen nach aussen stets am Nachbarhaus vorbei zu lenken. Zwei Erker, einer im Norden und einer im Süden, helfen das Attikageschoss formal mit dem unteren Teil des Volumens zu verweben.
Organisation und Wohnungen
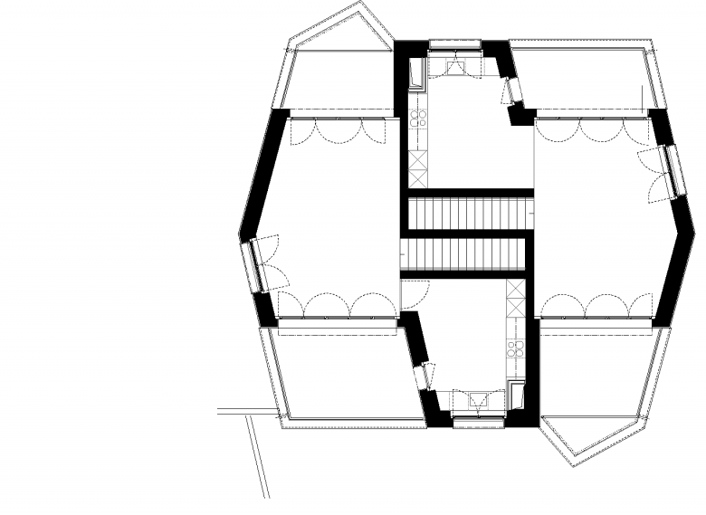
Über eine schmale, Privatstrasse erreicht man das Haus. Die beiden Hauseingänge liegen auf Gartenniveau und werden über zwei Aussentreppen, eine neue im Osten und eine bestehende im Westen, erreicht. Je zwei Wohnungen teilen sich einen Eingang.
Durch die zwei nebeneinander liegenden, einläufigen Treppen im Zentrum des Grundrisses bewegen sich die Wohnungen von der einen auf die andere Hausseite und entwickeln sich so vom Eingangsgeschoss hinauf ins Dachgeschoss bzw. hinunter ins Sockelgeschoss. Über diese Typologie erhält jede Wohnung eine sehr intimen Atmosphäre, fast schon einen ‘Einfamilienhaus-Charakter’. Die beiden unteren Maisonetten sind räumlich verwandt und auch die beiden oberen: die gleichen Räume erhalten aber durch die Drehbewegung der Erschliessung einmal die Ausrichtung mit Weitsicht zur Stadt, einmal diejenige in die nahen Bäume und Sträucher des Friedhofs, einmal liegen sie nach Osten und einmal nach Westen.
Der Wohnbereich der untere Maisonetten mit starkem Bezug zum Garten, ein Gästebad und je ein Zimmer, das gut auch als Wohnraumerweiterung genutzt werden kann, liegen im Erdgeschoss. Über die wohnungsinternen, gekreuzten Treppen gelangt man ins Sockelgeschoss zu den Schlafzimmern.
Von den oberen Maisonetten liegt nur das Entrée mit Garderobe im Erdgeschoss. Von hier aus gelangt man über einen ersten Treppenlauf ins ‘Gartenzimmer’ im 1. Obergeschoss. Das ‘Gartenzimmer’ liegt im Knick des Volumens und lässt sich im Sommer weitgehend öffnen. Zudem strahlt es eine angemessene Öffentlichkeit aus auf dem Weg mit Gästen in den Wohnbereich im obersten Geschoss. Es dient als Arbeitsraum, Bibliothek oder weiteres, kleines Wohnzimmer und wird von den beiden Schlafzimmern flankiert. Zweiflügelige Türen verbinden diese drei Räume zu einer Enfilade. Die Nasszellen und Nebenräume liegen alle in der Treppenschicht nach Süden bzw. Norden.
Im Dachgeschoss befindet sich der Wohnbereich mit der Küche und den grosszügigen privaten Terrassen. Auch hier unterscheiden sich die beiden ‘Zwillings-Maisonetten’ zum einen durch ihre Ausrichtung, aber auch durch kleine, baurechtlichen Gegebenheiten geschuldeten Nuancen. So ist bei einer Wohnung der Durchgang zur Küche breit und offen, bei der anderen hingegen schmal und durch eine Tür wird die Küche vom Wohnraum abtrennbar, so wie sich das die Bauherrschaft der jeweiligen Wohnung auch gewünscht hat.
- Architects
- Schneider Studer Primas
- Any
- 2019
- Estat del projecte
- Construït
- Client
- privat
- Equip
- Franziska Schneider, Rahel Angst, Lisa Zissis, Marina Peneva, Jessica de Freitas Martins
- Bauleitung
- Kadrmas Bauleitung
- Bauingenieure
- Schetzer Puska Ingenieure AG
- Elektroingenieure
- Gutknecht Elektroplanung AG
- HLS Ingenieure und Koordination
- TEWE AG
- Bauphysik
- BWS Bauphysik AG
Projectes relacionats
Revista
-
Bâtiment de la semaine
The Three-Body Problem: Trapped in a Wave Sandwich
Eduard Kögel, Scenic Architecture Office | 13.04.2026 -
-
















