Facultat de les Ciències de l'Educació
Bellaterra (Cerdanyola), Cerdanyola del Vallès, Spain
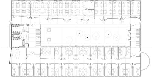
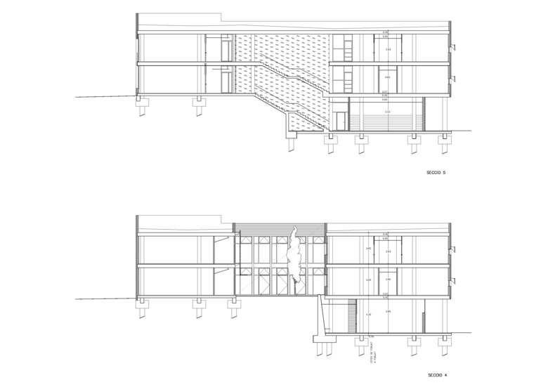
Aquest és l’últim edifici que completa la façana de la carretera de Cerdanyola i tanca el gran espai del Campus Nord. Complementa la dotació del conjunt de la Facultat de Ciències de l’Educació, amb aules de música, sala de graus i àrees departamentals. Està situat al mig, entre dues obres que vàrem acabar fa anys i aquest fet va condicionar la seva solució. La façana sud-est conserva les propietats de la Biblioteca d’Humanitats per protegir els espais de l’exposició solar, i el seu porxo corregut que com aquell edifici, l’enllaça a l’espai del Campus. Per contra, la façana que mira a la carretera de Cerdanyola, reprodueix les grans obertures de la veïna Escola de Mestres, per on s’aboquen els espais docents tant d’un edifici com de l’altre.














