Teatre "La Cooperativa"
Passatge de la Cooperativa, Barberà del Vallès, Spain
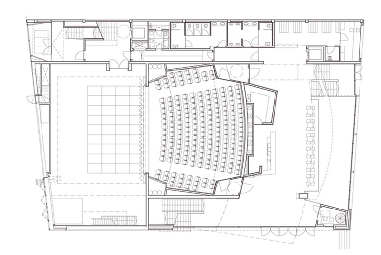
El Teatre Municipal Cooperativa juga un paper de primer ordre en la definició urbana de Barberà del Vallès. La influència de l’edifici no és tan sols dins del context i la vertebració de les institucions i els equipaments culturals de la vila, sinó en la pròpia formalització de l'espai urbà. El teatre, les seves dues sales i la plaça formen un continu dintre-fora, amplificant la festa teatral en la seva dimensió més cívica i artística.Teatre i ciutat, especialment aquest projecte constitueix un binomi conceptual que es formalitza en un edifici obert a la ciutadania i a la civilitat.













