杭州万科天空之城
Haishu Road, 杭州, China
杭州万科天空之城是杭州地铁和万科杭州合作开发的航母级项目,总建筑面积134万平方米,涵盖商业、办公、教育、文化中心、体育中心和住宅等业态。这个以公共交通为导向的项目将成为“天空之城”—— 杭州西部余杭区建筑面积达100万平方米的开发项目——的主要连接点和公共交通枢纽。它将容纳一些中国大型电商企业的总部,如阿里巴巴和腾讯,对稳固和提升杭州城市重要性有促进作用。整个项目未来建成后可看作一座迷你杭州城。
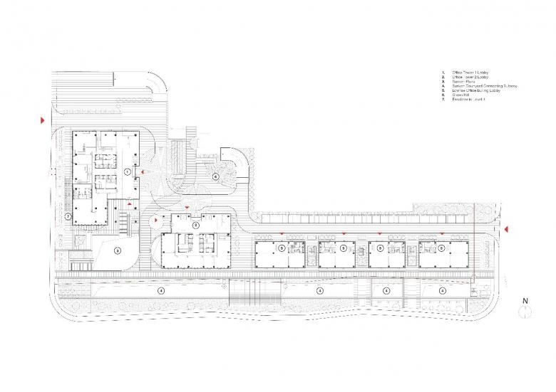
在总面积134万平米的规划中,叠术建筑负责其中约78000平米的一个地块的设计。这个地块位于“天空之城”项目的主干道上,与地铁站直接接驳。建筑由两栋54米高的包含底层商业的甲级办公楼、四栋24米高的独栋办公楼组成。
叠术建筑在2018年11月的竞标中赢得了这个地块。评审团赞扬叠术的设计体现了对TOD城市规划独特而有创意的解读。
在总面积134万平米的规划中,叠术建筑负责其中约78000平米的一个地块的设计。这个地块位于“天空之城”项目的主干道上,与地铁站直接相连。建筑由两栋54米高的包含底层商业的甲级办公楼、四栋24米高的独栋办公楼组成。
叠术建筑在2018年11月的竞标中赢得了这个地块。评审团赞扬叠术的设计体现了对TOD城市规划独特而有创意的解读。
由于叠术的地块是天空之城项目中唯一一个与地铁站直接相接的地块,功能上对枢纽的通达性要求是设计的重要因素。叠术建筑的设计目标是为往来于地铁和相邻住宅、幼儿园、办公和文化设施地块的人群提供便捷的连接,同时提高这个枢纽空间的商业价值。
叠术建筑通过分析周围的环境,加上对项目定位的思考,最后赋予这个项目“山谷和云”的设计概念。地下一层至地上三层取“山谷”的意向,高区取“云”的意向。
对于“山谷”部分,叠术建筑利用地块南侧政府指定的公共绿地,把一部分绿地转变成开敞的下沉绿带,成为地铁大厅的延伸。通过将日光引入到地下一层,该设计为从地铁到达地块的通勤者提供了一个独特、愉悦、流畅的过渡空间。同时,沿着地铁站厅在地下一层布置商业,为项目租用者带来更多收益。设计也消解了首层和地下一层之间通常生硬的界限。有顶盖的连廊将站厅和商业街与主要的下沉广场相连,办公人群可以很方便地到达办公塔楼。
二层三层特殊的悬挑体量形成下沉广场、商业、办公大堂的雨篷,并强调了功能上的重要性,即大型共享办公空间和书店。楼梯和扶梯布置在特定位置,连接地下一层和地上楼层,并最终与三层的过街天桥相连,可以到达相邻地块的文化设施。
“云”是塔楼部分的设计概念。沿用二、三层悬挑盒子以及建筑中间楼层水平向的横向语言,立面上强调了水平楼板线条。塔楼简单的体量主要是高密度地块条件对体量可能性造成限制的结果。
为了打碎巨大的体量,叠术对立面采用了体量化手法,利用材质区分和水平体量的错位及分割。重复的立面模块内结合了可开启窗扇,避免立面出现常见的可开启窗扇的细节。低区体量材质是白色亚光铝板,与裙房体量匹配。高区体量利用拉丝反光铝板和有反射效果的玻璃,映射天空的景象,将建筑渐隐在云中。
由叠术建筑设计的这个地块已经开工,我们非常期待项目建成的那天,期待这个项目带给杭州这座美丽的城市未来更多可能性。2020-12-20
- Architects
- 叠术建筑设计咨询(北京)有限公司
- Any
- 2020
- Estat del projecte
- En construcció
- Equip
- Carolyn Leung, Ben de Lange, Ruben Bergambagt. Yunqiao Du, Ana Raluca Timisescu, Arianna Bavuso, Valentin Račko, Xiaoyu Xu, Jay Peng, Inci Lize Ogun










