长治博览中心室内设计
Changzhi, China
叠术建筑在“长治城市展览中心”主要设计方案中,叠术保留了厂房原有的特有元素,融入了少量恰到好处的当代建筑设计,恢复其独特空间品质的同时,也实现了博览会中心的功能。厂房建筑本身特有的重复性结构元素,具有时代感的标语和规律的立面设计,都被完好地保留了下来,最终保持了建筑原始品质。
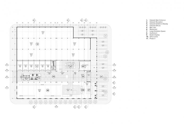
原轴承厂东面扩建了一个结构密集的办公区域。叠术建筑提议拆除所有的室内扩建区,改造成一个半开敞的空间,作为博览中心的主入口,使厂房原始立面表现出来。扩改的本意是通过不加任何多余元素重构原始门窗,提升入场的秩序性和可访性。通过外突的黑色金属框及透明双层玻璃强调了厂房南立面的节奏,同时转轴门的设计也便于户外的活动。
叠术建筑没有对厂房水泥地面进行任何挖掘,而是在水泥地上方设计了一个宽敞,位于正中央的抬升 “T台”。“T台”横跨东西两面,连接了整个展览中心。同时抬升的“T台”也巧妙地隐藏了所有的电线和管道系统。
天花垂挂的白色金属网“面纱”与中央“T台”遥相呼应。“面纱”悬挂在横梁与柱子间,完美地阐述了建筑本身的结构韵律,同时也柔化了整个空间的工业感。房顶的日照光线透过“面纱”照射进来,这景象奇妙地定义了如何在大空间里体现人性化。金属网帘间和上方都装有灯具,为夜间不同场合提供了多元化的灯光配置。而夹层设计充分的利用了挑高空间,一楼是公共区域,夹层既保留了隐私,也可用作于开放式工作区,图书馆和会议空间。
叠术建筑在重现文化遗产和为长治市民创造共同财产的同时,也帮助甲方和政府达到了他们的目标。如今在长治博览中心墙上还保留着当年的红色大标语,“大的胜利”。叠术建筑也希望长治展览中心项目作为成功的例子,为文化遗产带来更多的转型机遇。“Re-Veil”项目在这个全球城市化发展最快的国家,发起了有瞻望性的挑战。这个项目已成为国内发展中城市的参考标准。
项目获奖:2018年DFA(亚洲最具影响力设计奖)环境设计银奖;2019德国标志性设计奖创新建筑类至尊奖。
- Architects
- 叠术建筑设计咨询(北京)有限公司
- Any
- 2018
- Estat del projecte
- Construït
- Equip
- Carolyn Leung, Ben de Lange, Ruben Bergambagt, Pablo Gonzalez, Huimin Xie













