world-architects.com
Profiles of Selected Architects
Perfils
Projectes
Feines
Esdeveniments
Revista
Temes
Xarxa
Iniciar sessió
Registra't
Català
Català
Deutsch
English
Español
Français
Italiano
Nederlands
Português
中文
日本語
Català
Deutsch
English
Español
Français
Italiano
Nederlands
Português
中文
日本語
World-Architects
Projectes
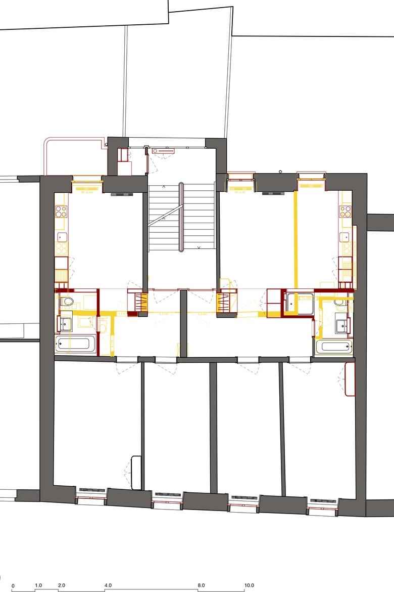
Haus Meerpferd Schmiedgasse
St. Gallen, Switzerland
Grundriss 2.Obergeschoss
Dibuix © Schneider Gmür Architekten
Schnitt
Dibuix © Schneider Gmür Architekten
Uso Mixt
Architects
Schneider Gmür Architekten
Any
2013
Estat del projecte
Construït
Client
Nef Immobilien + Handels AG
Projectes relacionats
Moos
playze
Reiters Reserve Premium Suiten
BEHF Architects
Erweiterung und Instandsetzung Hallenbad Altstetten
MIYO Visualisierung
Neubau von fünf Einfamilienhäusern
Bäumlin+John AG
The Forge in der 105 Sumner Street in London
Kiefer Klimatechnik GmbH
Bauleiter/in oder Hochbautechniker/in (m/w/d), 80–100%
schulzarchitektur gmbh
Projektarchitektin / Projektarchitekt ETH/FH 80%-100%
RUPRECHT ARCHITEKTEN
Wettbewerbsarchitekt/in 80-100%
RUPRECHT ARCHITEKTEN
més
Revista
Headlines
Getty Center to Close Temporarily for 'Major Modernization Efforts'
John Hill
| 10.04.2026
Insight
Energy-Positive Construction
Elias Baumgarten
| 09.04.2026
Headlines
Kengo Kuma To Design New National Gallery Wing
John Hill
| 08.04.2026
Film
Architecture for People, Not for Architects
John Hill
| 08.04.2026
Found
2 x 2 = 4 Books from 2 Architects
John Hill
| 07.04.2026
Altres projectes per Schneider Gmür Architekten
Stiftung Vivala Weinfelden
Weinfelden, Switzerland
Haus für Demenz der Thurvita AG
Rossrüti, Switzerland
Neubau Wohnüberbauung Stationsstrasse
Embrach, Switzerland
Erweiterung Stiftung Pigna
Kloten, Switzerland
Instandsetzung und Umnutzung Suchtfachklinik Zürich
Zürich, Switzerland