Stiftung Vivala Weinfelden

Weinfelden, Switzerland
Ankunft
Visualització © ATELIER BRUNECKY
Park
© ATELIER BRUNECKY
Beschäftigung Obergeschoss
© ATELIER BRUNECKY
Erdgeschoss
Dibuix © Schneider Gmür Architekten
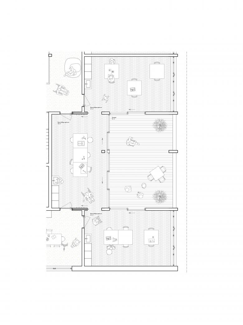
Grundriss Beschäftigungsräume
Dibuix © Schneider Gmür Architekten
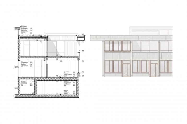
Detailschnitt Haus E
Dibuix © Schneider Gmür Architekten
Architects
Schneider Gmür Architekten
Any
2021
Estat del projecte
Disseny

Projectes relacionats 

  • Gymnasium Schulstraße
    Kronaus Mitterer Architekten
  • GROHE Water Experience Center
    D’art Design Gruppe GmbH
  • Limmatquai 4
    Kästli Storen
  • Volksschule Erlaaer Schleife
    Kronaus Mitterer Architekten
  • Ortsdurchfahrt Domat/Ems
    Luminum GmbH

Revista 

Altres projectes per Schneider Gmür Architekten 

Haus für Demenz der Thurvita AG
Rossrüti, Switzerland
Neubau Wohnüberbauung Stationsstrasse
Embrach, Switzerland
Erweiterung Stiftung Pigna
Kloten, Switzerland
Haus Meerpferd Schmiedgasse
St. Gallen, Switzerland
Instandsetzung und Umnutzung Suchtfachklinik Zürich
Zürich, Switzerland