Haus R
Frankfurt am Main, Germany
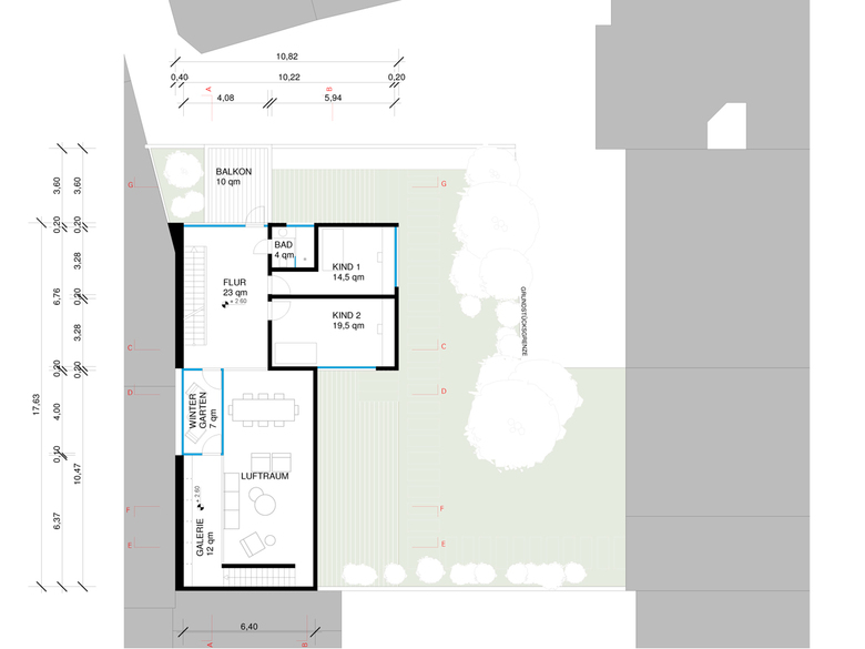
Der Entwurf wurde für einen Wettbewerb für ein Einfamilienhaus in einer zentralen Frankfurter Nachbarschaft entwickelt. Obwohl das Haus R von angrenzenden Gebäuden umgeben ist, bietet die vorgeschlagene Architektur ein hohes Maß an Privatsphäre, wobei Transparenz und Interaktion mit der Landschaft erhalten bleiben. Eine spielerische Kombination aus wechselnden Ebenen und offenen Hohlräumen sorgt für ein inspirierendes Interieur, das sich auf den großen Wohn-Essbereich in doppelter Höhe als soziales Zentrum des Hauses konzentriert. Der Entwurf wurde mit dem zweiten Preis ausgezeichnet.
- Any
- 2009
- Estat del projecte
- En construcció









