Xue Xue Institute
Taipeh, China
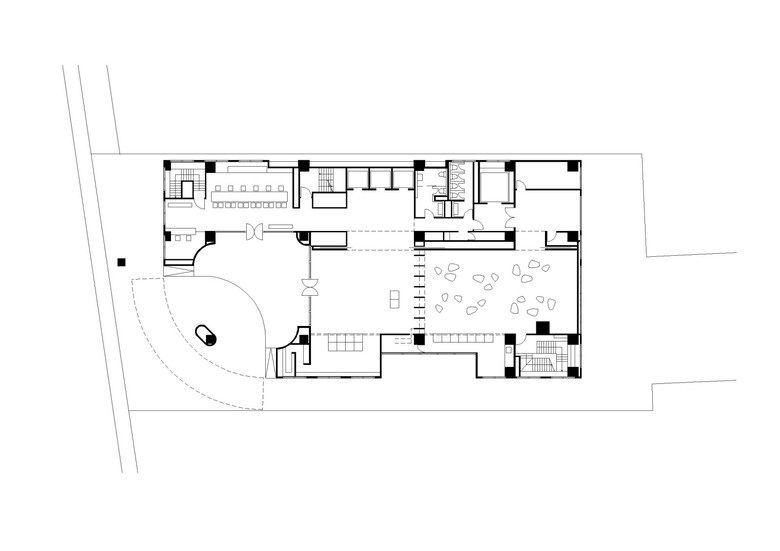
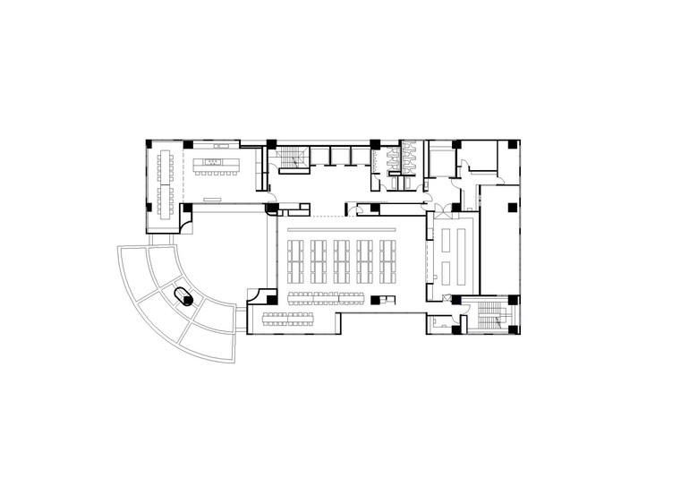
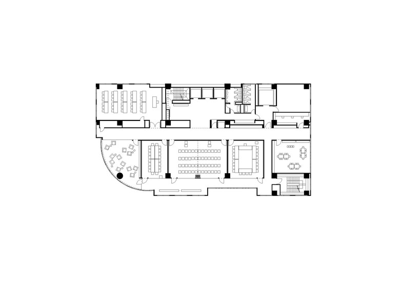
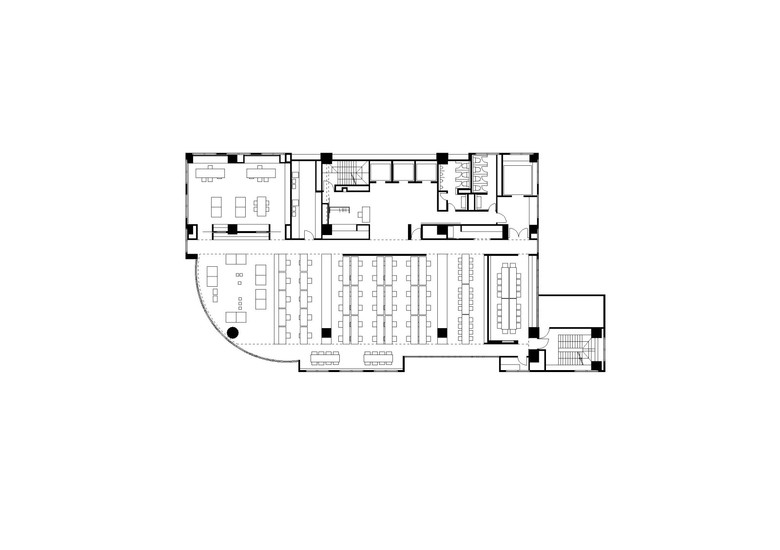
Um die erste private Universität, das Xue Xue Insitute, in Taiwan zu schaffen, wurde der Umbau eines leeren, zehnstöckigen, 8200 m² großen Büroturms im Zentrum des Handelsviertels Nai Hu in Taipeh in Auftrag gegeben. Im Zentrum des Interior Designkonzepts stand die Idee, die Kommunikation zwischen verschiedenen Benutzergruppen zu fördern, um den interdisziplinären Austausch als Grundlage für ein besseres Arbeiten und Lernen zu fördern - weg von traditionellen Vorträgen im Podiumstil hin zu einem aktiveren und lebendigeren Gedankenaustausch zwischen Professoren und Studenten. Die Fertigstellung des Innenraums umfasste die Konzeption des Shops und der Mediengalerie im Erdgeschoss, des Restaurants und der Küche im zweiten Stock sowie der Klassenzimmer und Büroräume im dritten bis sechsten Stock. Ein zentrales Element aus Eiche dient als Orientierungshilfe für jede Etage. Das Briefing umfasste neben der Konzeption und Realisierung der Innenarchitektur auch die Planung und Realisierung aller Möbel. Das Xue Xue Institute ist Taiwans erste private Akademie, die sich ausschließlich der kreativen Kunst, dem Design und der Kultur widmet.
- Any
- 2006
- Estat del projecte
- Construït



























