Kurfürsten Carré
Heidelberg, Germany
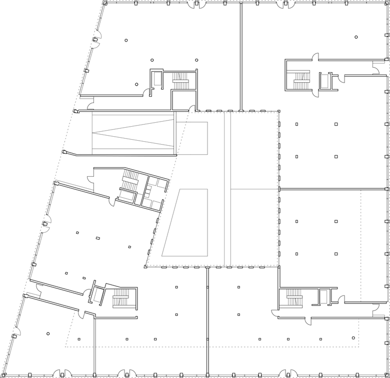
Die benachbarten Baufelder MK2 und MK3 bilden einen wichtigen Bestandteil der städtebaulichen Neuordnung entlang der Kurfürstenanlage. Architektonische Themen sind die Ausformulierung einer attraktiven Nord-Südquerung vom Park in Richtung Bahnhofstraße sowie ein klar geordnetes und flexibles äußeres Erscheinungsbild für beide Baufelder. Dazu werden strukturierte Sandwichfassaden aus differenziert ausgeformtem Architekturbeton verwendet. Die Erdgeschosszonen des Kurfürsten Carré werden für Gewerbeeinheiten und eine Kindertagesstätte mit Bezug zum Innenhof genutzt, die Obergeschosse enthalten Wohnungen unterschiedlicher Größen und Zuschnitte.
Auftraggeber
Conceptaplan & Kalkmann
Wohnwerte GmbH & Co. KG, Dossenheim
BGF
19.390 m2
BRI
70.700 m3
Leistungsbild
Lph. 1 – 5 (Leitdetails),
8 (künstl. Oberleitung)
Fotografie
Roland Halbe
- Habitatges
- Comercial
- Bloc d'habitatges
- Educació
- Edificis d'oficines
- Retail + Stores
- Guarderies + Llars d'infants
- Architects
- Auer Weber
- Any
- 2014
- Estat del projecte
- Construït













