Universitätszentrum Lyon
Lyon, France
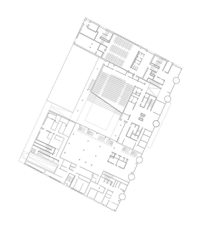
Die verschiedenen Bausteine des Universitätskomplexes, die Hochschulverwaltung (PRES), das Institut für Technologie (IUT), eine Mensa und ein Studentenwohnheim ordnen sich ringartig um einen landschaftlich gestalteten Innenhof. Damit wird die für Lyon typische repräsentative Blockrandschließung fortgeführt und nur im Bereich des Haupteinganges durch den darüber liegenden, aus der Bauflucht vorspringenden Baukörper des PRES unterbrochen. Mit seinen Terrassen und Sitzstufen übernimmt das Blockinnere die Funktion eines offenen, die Kommunikation zwischen den Instituten fördernden Forums.
Auftraggeber
Rectorat de l‘Académie de Lyon,
Crous de Lyon, Saint Etienne
Bruttogeschossfläche
17.850 m2
Bruttorauminhalt
71.164 m3
Leistungsbild
Generalplanung
Mission de base MOP complète,
entspr. Lph 1 – 9 HOAI
Partnerarchitekten
Arodie Damian Architectures, Paris
- Architects
- Auer Weber
- Any
- 2015
- Estat del projecte
- Construït
















