Liu Geng Tang Hall
Hongguan village, Wuyuan, China
Restoration and reconstruction of Liu Geng Tang Hall in Hongguan village, Wuyuan County
The New Life of a Hundred-Year-Old Huizhou House
Restoration and reconstruction of Liu Geng Tang Hall in Hongguan village, Wuyuan
Origin and evolution
At the beginning of 2017, Mr. Wu Zhixuan, who has been focusing on the restoration and utilization of Huizhou ancient houses in Wuyuan, found our design team, hoping to jointly build a homestay with the theme of Hui ink culture. The design team accepted the task, and tried to work with the owner to explore the way of restoration, reconstruction and utilization of ancient residential buildings in a specific cultural background, in line with the needs of the contemporary. The ideal is perfect, yet the reality cruel. After nearly three years of on and off work stoppages, the project is finally preliminarily completed in December 2019.
The project is located in Hongguan village, Wuyuan County, Jiangxi Province. Wuyuan belongs to the range of ancient Huizhou, and the Hongguan village is located 50 kilometers north of Chengguan, Wuyuan County, which is well-known for ink making in Ming and Qing Dynasties. It is said that "seven-tenths of the smoke ink in the world originate from Huizhou, and seven-tenths of the smoke ink in Huizhou originate from Hongguan". The Zhan family in Hongguan village is the representative of Hongguan ancient smoke ink industry: it was Zhan Yuanxiu (1627-1703) who improved the original technology to make Hongguan smoke ink a favorite of the Chinese literati. Nowadays, Hongguan Zhan’s ink can still be seen in the Palace Museum.
The old house, Liu Geng Tang Hall, located at the entrance of Hongguan village, is the residence of Zhan Guohan, the third grandson of Zhan Chenggui, a master of ink making in the late Qing Dynasty. Facing the big 1600-year-old camphor tree at the entrance of the village and the newly built villagers' activity square, the building is a rare house with courtyard. The special location and open courtyard “free” Liu Geng Tang from the dense texture of the ancient village, which is one of the reasons why the owner rent and renovate it as a home stay.
The original space structure of Liu Geng Tang Hall is divided into three parts from east to west: main hall, guest hall and kitchen. With the longest history, the main hall is a single-patio courtyard with two floors, of which the entrance door is located in the southeast corner of the building, hidden between the alleys, and was the living space of the former master's family. The central guest house is a double-patio quadrangle courtyard, and most of the buildings are two-floored, composed of two independent living spaces for old guests and servants. The kitchen is a three-story wooden space, the first floor as kitchen, and the second and third floors used for stacking sundries and farm tools. The three parts of the building can be used independently and connected with each other at the same time. The building is connected with the courtyard through the small gate on the south side of the guest house, in which here is a laurel tree, a jujube tree and a small bamboo forest.
When the owner rented the Liu Geng Tang Hall, the back of the guest hall had been basically damaged by a fire, leaving only four walls and open space. The owner first summoned local craftsmen to repair the back of the guest house and the kitchen in accordance with the traditional construction technology by the way of repairing the old as the old. It is worth mentioning that this repair operation has been the first house built in accordance with the traditional technology in Hongguan village in recent decades, and the construction process has been completely recorded, which has become important materials for local intangible cultural heritage research.
Spatial arrangement and physical upgrading
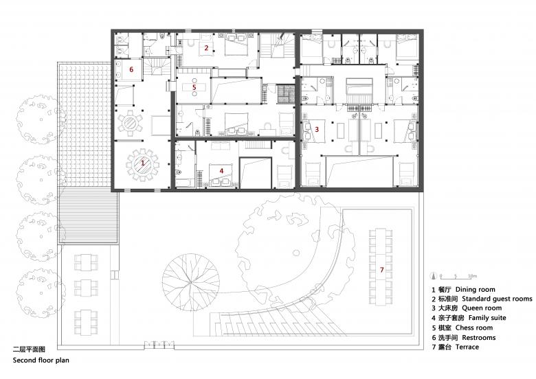
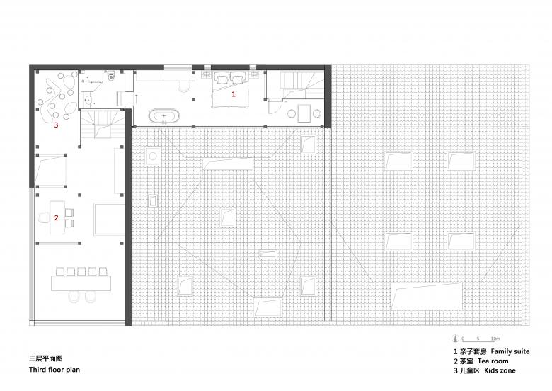
When the design team intervened, the building repair work was nearly completed, and the building space pattern was basically determined. According to the new use function as a homestay, the design team first combed the flow lines: simplified the original repeated stairs of the building, connected the two floors and three independent areas to form a continuous traffic flow line. Then, the public service space and accommodation space are divided into zones. The space function of a homestay needs to take into account the living experience of accommodation and public space, with proper movement and quiet, and private and public areas coexist organically. In the design, the second and third floors of the main hall and guest hall are defined as guest rooms, with a total of 13 rooms. As a public service and supporting catering space, the first floor and the original kitchen are equipped with study, Guqin room, studio, chess room, tea room, catering and other functional spaces.
The courtyard has been rearranged to retain the laurel tree and jujube trees with spatial attributes, and a coffee shop has been added in the southeast, which not only meets the daily needs of residents, but also receives the tourists in Hongguan village.
The improvement of comfort of the building is very important for the project. As the future function of the building is a homestay, the old building cannot meet the requirements of sound insulation, heat preservation, toilet water supply and drainage required by the new function. On the premise of not destroying the traditional style and pattern of the building as possible, the renovation design has added up and down toilets, thickened the existing wood partition, filled with insulation and sound insulation materials, and added electric floor heating, air conditioning and 24-hour hot water to ensure the living comfort.
Main hall, innovation with reverence
The architects try to find a balance between the restoration of ancient buildings and the innovation of space. For the old building part of Liu Geng Tang, the architects adopted a restrained design attitude and tried their best to maintain the space spirit, the genius loci, of Huizhou ancient house. At the same time, through the transformation of the main hall, patio, stairs, restaurants and other public spaces, to achieve the comfort of the function of accommodation. In addition, new materials and new forms are placed in local positions in a reversible way to activate the space atmosphere and form a new-old dialogue.
The main hall is the most important public space of the original building, which often plays a role of point, is an important carrier to show the owner's ideal and taste, and has a unique spiritual core role in Huizhou ancient house. The public function of the new main hall is further strengthened, and the new and old "master" feelings of Liu Geng Tang are redefined in combination with the new functions and styles of the space. The whole space is themed with books, paintings, Guqin and tea: the original layout of the main hall space is replaced by reading space, the ground is treated as overhead, bookshelves are added on both sides, and reading gesture returns to the form of low sitting. The partition wall with the original space intact is reserved as the vertical interface of the space, forming a dialogue with the newly added furniture. The plaque "Liu Geng Tang" on the top of the main hall still stays in the original place, and becomes the spiritual source of the whole space after bringing out the theme.
The East and west sides of the main hall were originally residential spaces, one of which has been changed into a studio and the other into a teahouse. The team designed a mirror pool in the patio. The owner of the pool invited local artists to create an installation with mountains and rivers as intention with steel plates as raw materials, becoming the opposite view of the main hall. The attached space in the southwest of the patio is equipped with a console table, where Guqin can be played. The original entrance of the building is still reserved in the southeast.
Guest house, creating a modern and tranquil life
The guest house is parallel to the main hall, with a two-row courtyard layout, and the courtyard in the south is an independent space. After transformation, it is designed as a family suite with its own patio and independent staircases. The courtyard in the north, low in the South and high in the north, is a quadrangle, with a small door in the East connected with the main hall by one span, and the restaurant in the West, and with two floors in the South and three floors in the north. The patio is the core of the space and the only place to “breathe”. Different from the surrounding antique, the architects hope to introduce artistic elements to activate the atmosphere. Finally, a "fish-leaping-over-the-dragon-gate" themed installation is suspended in the space, of which the flexible reflection light of metal materials brings spirit to the originally narrow patio space.
The third floor on the north side of the guest house is the largest and most luxurious guest room in Liu Geng Tang, which has only one floor, and the large glass on the south side can lead the sunlight into the room very well. People sitting in bed, or lying in the bathtub, through the glass can have a panoramic view of the near roofs and far hilltops, as well as the misty rain of four seasons, although not the ancient way of life, but the ancient tranquil mood.
Restaurant, both practical and ambient
The restaurant is divided into three floors: the first floor as a leisure area with small tables for 2-4 people, the second floor equipped with two large round tables to meet the dining needs of many people, and the third floor a tea room space. At the same time, the architects and the owner also hope to provide a certain leisure and cultural atmosphere. On the first floor, a hand-made fireplace is put into the space. The rough style adds the atmosphere of farmhouse to the interior. In the patio on the north side of the fireplace, the owner invited Ms. Wen Na, a famous illustrator, to create a nine meter high wall painting, "Ink God", to show the story of Hui ink in a modern way. In addition to the point, it also corresponds to the overall design idea of Liu Geng Tang.
A small chess room is set up on the second floor. Through the large glass window, from the chess room and the patio of the guest house people can see each other. The architects designed a barrel skylight on the roof of the chess room, which introduces the skylight into the room to form a dramatic aperture. The chess room is simply decorated. Tatami with white walls makes people calm. The only decoration comes from the north wall. The designer uses bamboo paper to mount the wall, with dark light behind in mysterious effect. With the light off, the wall surface is flat and plain; but with the light on, a full moon emerges quietly.
The third floor is expanded from the original sundry room and roof platform, on which man can have a good view of the big trees, streams and rice fields at the entrance of the village. The architects adopted glass facade to make the room as transparent and light as possible to avoid the influence of the heavy volume on the old building.
Courtyard, new building creating new field
Due to the huge tourism potential of Hongguan village in the future, the owner hopes to use the courtyard to add a space for external service, which is usually used as a coffee shop and also as a small meeting and classroom function. In this regard, on the one hand, the architects consider it as necessary, while, on the other, it is yet not expected to be too prominent, because, too outstanding new construction will inevitably affect the main position of the old house.
Finally, the coffee shop is located in the southeast corner of the courtyard, with the east and south walls as the sides, and the existing laurel tree as the center, drawing an arc sideline. The new building does not adopt the traditional style, it is more like a non-styled geometry. In order not to "occupy" the outdoor space, the architects hope to use the roof of the new building. A step-by-step roof building is designed. The lower space is used as a coffee and multi-functional hall, and the upper part is a roof platform, which becomes a place for outdoor dining and activities. The upper and lower spaces are connected by an elegant and gentle staircase, which not only strengthens the characteristics of the new building, highlights the subjectivity of the old house, but also provides rich experience in the vertical dimension for the plain courtyard itself. In the lower part of the ladder, bamboos are used to create the image of a "bamboo forest", which responds to the original bamboo forest in the field and provides children with playing space.
The external facing of the roof of the new building is made of polished and reused old wood left over from the repair of the old building. The architects hope to endow the new building with sustainable thinking. All sides of the new building are glass curtain walls, which can keep light and transparent while introducing sunlight as much as possible. The interior space is simple, and the furniture movable, so that the space can be flexibly arranged.
With the new building, the landscape of the courtyard has also been designed. Calm but not deliberate is the general idea of courtyard landscape. The original laurel and jujube trees are preserved as the commanding point and center of the courtyard. The local flagstones of Huizhou are used for pavement, and the open channels in the village are introduced to form a small water system in the courtyard. The old building is the main background of the courtyard, while the new building, as the foreground, moderately separates the courtyard and the village square. At the same time, with a posture of encircling, it highlights the importance of the laurel tree and the old building facade, making the courtyard space more three-dimensional.
Epilogue
The transformation of Liu Geng Tang has experienced three years from design to completion, during which, due to various reasons, the design has been changed for several times, and the scheme has evolved from stimulus to gentleness. It doesn't matter to be right or wrong, but the long process really triggered the architects’ thinking on such projects. Building in the countryside, especially in the historic countryside, needs to face many propositions. In Liu Geng Tang, how to balance function and atmosphere, contemporary and tradition, culture and business, a series of contradictions, is faced by the architects and owner. However, we have always believed that atmosphere is also a function, that tradition was also "modern" at that time, and that man could undoubtedly make money with culture.
Project data:
Project name: Restoration and reconstruction of Liu Geng Tang Hall in Hongguan village, Wuyuan County
Location: Hongguan village, Wuyuan County, Jiangxi Province
Owner: Shang Yi Xuan Resorts Ltd. in Wuyuan
Architecture, interior and landscape design: 3andwich Design / He Wei Studio(www.3andwichdesign.com)
Principle architects: He Wei, Chen Long
Design team: Zhao Zhuoran, Cao Shiqing, Wu Qiancheng(intern), Ye Yuxin(intern), Gao Junfeng(intern)
Lighting concept: Zhang Xin, Zhao Xiaobo, Zhou Xuanyu
Project consultant: Wu Zhixuan
Design period: April – Dec. 2017
Completion time: Dec. 2019
Site area: 800sqm
Construction area: 450sqm
Photography: Fang Liming
- Architects
- 3andwich Design / He Wei Studio
- Any
- 2019
- Estat del projecte
- Construït
- Client
- Zhao Zhuoran, Cao Shiqing, Wu Qiancheng(intern), Ye Yuxin(intern), Gao Junfeng(intern)
- Equip
- He Wei, Chen Long















































