Persimmon Garden
Wangjaituan Town, Weihai, China
Known as “xiangdi” in ancient China, site investigation and selection is the first step of the design work. Lots of fruit trees grow on the project site, and between the two courtyards, a paved path leads to the back mountains, covered with all kinds of plants and tall arbors, such as persimmon and Chinese catalpa trees. The original architecture was a local residence in typical Jiaodong Peninsula style: a single-storey courtyard but not the kind of standard quadrangle one, with only a principle room and wing-rooms, dark gray hanging tiles and rough-stoned walls, heavy, decorous and resplendent. The designer admires heartily the handwork aesthetic perception of this kind of traditional masonry construction technique, which is in sharp contrast to the shoddy situation nowadays.
In addition to the buildings on the site, the trees, mountains and stones have been even more important elements attracting the designer. While the mountains forming the background and the trees the foreground, also deemed as significant landscape elements, the stones, as a sort of linkage between human and nature, play a vital role in the construction behaviors.
Our design conception is to create a kind of countryside garden aura of a north Chinese village. “Countryside” doesn’t mean wilderness, and “garden” not courtyard, which should have a sense of design and some literati atmosphere. Therefore, the trees, mountains and stones found in the process of site investigation and selection have gained significance, which will be the main scenery elements in the garden and new spaces for appreciation and enjoyment.
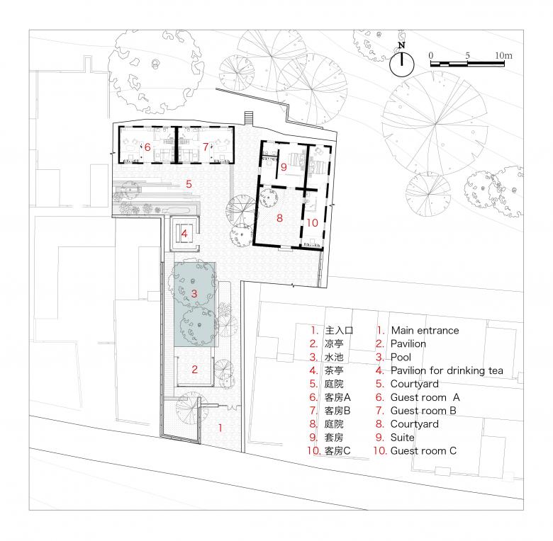
A garden will never be a garden without water. Water will not only endow the space with anima and aura, but also improve the temperature and humidity in the micro-environment. However, water landscape could be a big problem in the frigid winter in north China. The water landscape in the Persimmon Garden is a shallow pool with a depth of 30cm, bordered with plate metals, which will be a serene pool in summer and a playground filled with sand in winter. The trees in the middle of the pool are the original ones untouched, which grow out of two hollowed-out holes in the pool, standing solely but echoing each other.
The two pavilions at both ends of the pool are newly attached parts, providing the dwellers with semi-outdoor space and becoming the opposite scenery spots and control points in the space. The traditional official architectural form has not been indiscriminately applied to the pavilions, but modernity and regionality. Single-pitch roof and traditional masonry base with wooden grill windows, it’s not vintage-styled, but has a taste of countryside.
For the walls, regional traditional techniques of stone-laying and wooden fence have also been used. The newly laid stones, the formerly laid stones and the original tiger skin stone walls have altogether formed a dialogue of the traditional construction techniques through time and space. The clearings at the foot of the mountains behind the buildings are tidied up to be the backyard of the guesthouse, with meadow, catalpa trees and a swing, private and cozy.
The architects haven’t deliberately preserved the original residential elements incl. cooking hearths and heated brick beds. On the contrary, we strengthened the guesthouse’s public spaces, enlarged the living room area, increased private bathrooms, and connected the inter-spaces between living rooms and spaces for resting tactfully. While the exterior appearance of the original architecture is completely preserved, merely steel arbour and seats are added to the main entrance, to meet the functional requirements. As for the furniture, the designer collected a mass of used local furniture, such as tables, chairs, benches, top containers, stitching machines, etc, which are placed into the spaces, tightening the connection between the guesthouse and local culture and embodying the theme positioning of a “countryside guesthouse”.
Project name: Persimmon Garden
Location: Wangjaituan Town, Weihai , Shandong Province
Design Company: 3andwich Design / He Wei Studio
Website: www.3andwichdesign.com
E-mail:contact_3andwich@126.com
Principal Architect: He Wei
Design Team: Chen Long, Zhang Jiaojie, Sang Wanchen, Li Qiang, Wu Lijun
On-site:Representative: Liu Weidong
Soft outfit counselor: Bai Bing
Building area:480 sqm
Period of Design: Dec. 2017 - Apri 2018
Period of Construction: 2018
Cooperation company:Beijing VAGE Institute of Architectural Design & Planning Co., Ltd
Photographer: Jin Weiqi
- Architects
- 3andwich Design / He Wei Studio
- Any
- 2018
- Estat del projecte
- Construït
- Equip
- He Wei, Chen Long, Zhang Jiaojie, Sang Wanchen, Li Qiang, Wu Lijun
- On-site:Representtivae
- Liu Weidong
- Soft outfit counselor
- Bai Bing
- Cooperation
- Beijing VAGE Institute of Architectural Design & Planning Co., Ltd






























