三宅町交流まちづくりセンター MiiMo (ミーモ)
奈良県三宅町, Japan
人と環境相互のチューニングがつくる町民ひとりひとりの"居場所"
「多世代が繋がり地域の魅力が創出される町民ひとりひとりの"居場所"」というMiiMoの基本計画から運営方針まで一貫するビジョンに対して、私たちは設計において、町民や職員の皆さんとの丁寧な対話プロセスを通して、多世代の町民ひとりひとりが、これまでの活動を継続することも重要視しつつ、その活動が他者から見えたり、活動の音が聞こえたりすることが、地域の魅力の創出につながると考えた。
また、ひとりひとりの居場所については、時間帯や活動に応じて、「静かな場所」「にぎやかにしていい場所」を用意し、利用者が見え隠れ程度の仕切り方をするなどのチューニングができるような、家具、可動間仕切り、カーテンを、建築と等価に扱って室内外の環境のデザインを行った。人を包んでいる環境自体を、利用者や運営者が主体的に、自らの居心地のいい状態にチューニングすることで、思い思いに居る場所ができる。また人が居るという風景自体も、他者にとっては環境となり、多世代がそれぞれの活動をしながら居合わせ、地域の魅力が可視化されるという状況が生まれる。
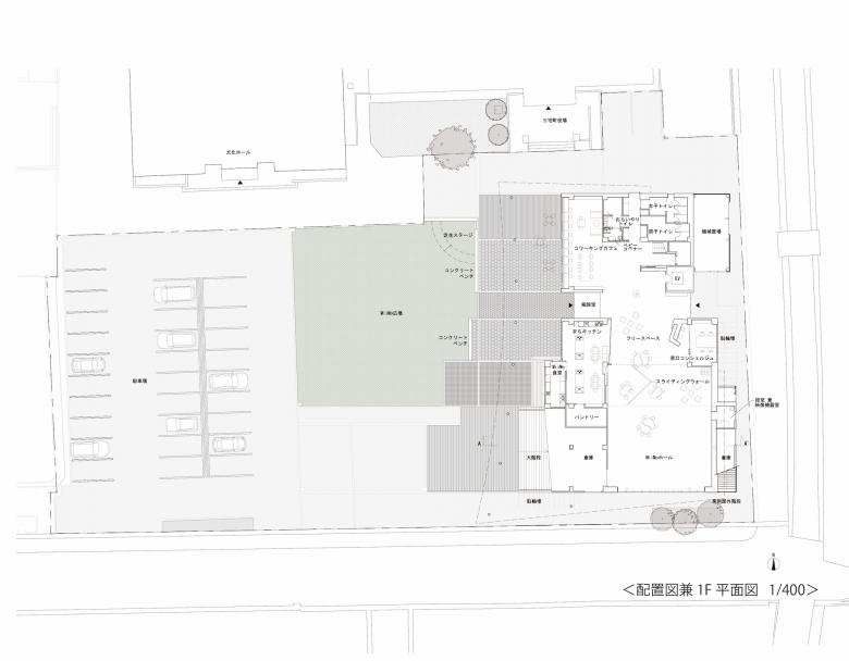
広場を中心に3つの建築が向き合う関係をつくり場所の価値を再定義
建築がつくりだす立体的な中間領域が、敷地内外の環境と新たな関係をつくり、場所の価値を再定義したいと、この10年来考えている。今回のMiiMoの敷地では、建て替え前は公民館が、ホール正面をブロックし、歩行者や子どもたちが滞留する場所がなかった。私たちは、公民館の建て替え、学童保育、子育て支援機能という、三宅町の老若男女が必要とする場所を、町役場とホールが集まる敷地に集約するにあたり、3つの建築がMiiMo広場を中心に向き合う関係をつくり、出来るだけ公(おおやけ)らしくない場所の価値へと再定義したいと考えた。そこで行った敷地全体の設計の工夫は以下の3つに収斂される。
① 駐車場を分離し、MiiMo広場を中心にして歩行専用空間を増やし、目的となる飲食店舗を配置。
② 大階段や2階テラスなど室内と繋がった、MiiMo広場に対する立体的な視点場を大屋根の下につくる。
③ 緩い曲線を持つ大屋根や、それを支える柱によって、MiiMo広場に対してヤン・ゲールの提唱するエッジすなわち空間の境界ゾーンをつくる。
用途 地域子育て支援拠点施設
構造・規模 鉄骨造 地上3階建
敷地面積 1,542.28㎡
建築面積 967.02㎡
延床面積 1,881.56㎡
- Architects
- ジオ-グラフィック・デザイン・ラボ
- Any
- 2021
- Estat del projecte
- Construït
- Client
- 三宅町 Miyake Town
- 設計
- 前田茂樹 中野照正
- 構造設計
- tmsd 萬田隆構造設計事務所
- 設備
- 島津設計
- 外構
- 素地
- グラフィック
- UMA / design farm
- ファブリック
- fabricscape
- 照明
- ツキライティングオフィス
- 施工
- 株式会社森組
























