箕面船場阪大前駅エントランス
大阪府箕面市, Japan
【 通過ではなく滞留できるコモンズとしての駅 】
このプロジェクトは、大阪の地下鉄御堂筋線の北への延伸に伴う新駅を出たエントランス空間です。機能的に求められている用途は、地下3階の駅の出入り口と、地上レベルとペデストリアンデッキレベルをつなぐための通過空間であり、災害の際に避難が迅速に行える空間でした。しかし私たちはコンペを通じて、単なる通過空間ではなく、自然環境溢れる箕面市に来たこと、住んでいることを日々実感できる豊かな余白を持ったコモンズ(共有財)としての駅エントランスの空間が出来ないかと考えました。NYのセントラルステーションをはじめ、駅というビルディングタイプの黎明期には、豊かな共有空間があったが、駅周辺は必然的に地価が高くなることもあり、近年は商業的な目的でしか設置されなくなっている。私たちは、駅というビルディングタイプをとらえ直し、滝や紅葉が有名な箕面市ならではの自然地形と人工物の中間のような豊かさを持つ半外部空間として、皆と空間を共有しながらも、利用者が思い思いに滞留してもいいと思える空間を設計する必要があると考えた。
【 思い思いに滞留するため、人の認知の知見を反映 】
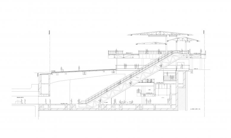
人の認知として、天井高さが6m以上ある空間にいると、天井面を認識せず外部空間にいるのと同じようなふるまいをすると言われています。私たちは複数の膜屋根を、ペデストリアンデッキレベルをカバーする高さで重なり合う構成を提案しました。その結果、膜を通した拡散光と、重なりの間から漏れる自然光や風により、地下でありながらも、自然を感じる空間が出来ました。屋根の重なり具合は、全方位から30度の角度で雨が降る状況になっても、エスカレーターには雨がかからないことをシミュレーションして確認しました。
敷地形状が約45度の角度を持った不整形でしたので、地下3階から地上へ上がる階段は、中心のヴォイドを囲むように回転させています。向きの違う大きな踊り場が、立体的な地形のように重なっており、中心のヴォイドを見ながらも、それぞれの階から別の風景が見え、視線が交わらないように設計しました。また地上へ上る階段の裏側にはギャラリーと事務室が配置され、エントランスを出た地下3階のカフェとともに、このエントランスの滞留するきっかけをつくりだします。
用途:事務所、ギャラリー、公衆便所、カフェ、その他(道路施設、歩行者デッキ、機械式駐輪場)
構造・規模: 地下部:鉄筋コンクリート造・地上部:鉄骨造 / 地下3階 ・ 地上2階建
敷地面積:1364㎡
建築面積 : 102㎡ (確認申請に関わる部分※トイレ棟・事務室)
施工床面積:2240㎡
- Architects
- ジオ-グラフィック・デザイン・ラボ
- Any
- 2023
- Estat del projecte
- Construït
- Client
- 箕面市 Minoh City
- 設計・管理
- ジオ-グラフィック・デザイン・ラボ+東畑建築事務所設計共同体
- 構造・設備
- 東畑建築事務所
- サイン計画
- UMA / design farm
- 施工
- 村本建設

















