Morgridge Hall
1205 University Avenue, Madison, WI, USA
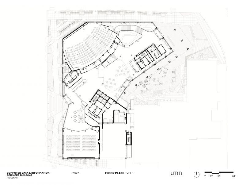
Morgridge Hall is the result of a shared vision between the University and alumni John and Tashia Morgridge, designed to spark collaboration across disciplines and drive innovative solutions to global challenges. The building is organized around a central, daylight-filled atrium known as “the heart”—a vibrant, open space that serves as the unifying element of the design. This welcoming environment is emblematic of Morgridge Hall’s commitment to inclusivity, encouraging interaction and collaboration among students, faculty, and researchers.
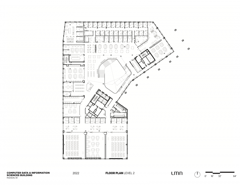
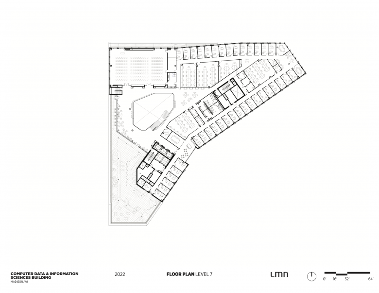
The building is thoughtfully organized to support three key ecosystems: Learning, Student, and Research. These ecosystems are conceptually linked along a continuous “breadcrumb trail” that flows vertically through the public heart of the building, leading to a variety of thematic hubs on each floor. Flexible ribbons of research labs, offices, and collaboration spaces maximize social engagement and foster cross-disciplinary collaboration, while also providing adaptability to meet the university’s evolving needs. The interior is illuminated from above and below with natural light that changes throughout the seasons, enriching the social experience and creating a dynamic atmosphere.
Morgridge Hall’s open layout includes a café on the first level, inviting the university community in and fostering a sense of common purpose. Every floor features spaces designed to promote connection, from informal social areas to workspaces that encourage spontaneous collaboration. Wellness rooms and terraces provide restorative environments, supporting the building’s commitment to human-centered design and well-being.
Setting a new precedent for sustainable architecture on campus, Morgridge Hall features a high-performance envelope and 359 rooftop solar panels that will produce 162,441 kWh per year—enough to power 182 average Wisconsin households. The building achieves 35% better water use than the federal standard, with a system designed to capture stormwater for plant irrigation. Twenty-five percent of the site area is covered by planted areas, including the courtyard, terraces, and green roof, with 82% of the plant species native to Wisconsin. Biophilic design principles are woven throughout, with indoor gardens, green walls, and exterior terraces that integrate nature into the user experience. The building is targeting a 63% reduction in energy use compared to the 2030 baseline, setting a new benchmark for campus sustainability.
Public art installations throughout Morgridge Hall—including Clayton Binkley’s “Ghost Forest” and Amanda McCavour’s “Ode to a Prairie”—celebrate Wisconsin’s topography and cultural heritage. Locally inspired art connects the building to its surroundings, telling the stories of the land and its people. Materials and finishes echo the state’s landscapes, with CNC-milled Corian panels mapping the Wisconsin River and interior mosaics inspired by local landscape photography. The exterior features precast panels of high-performance concrete textured to emulate local geologic features called drumlins and regional woven textiles. The finish palette transitions throughout the building to evoke the distinct seasonality of Wisconsin, from warm autumn and sunset hues in the student ecosystem to the lush greens and blues of summer days on the lake in the research ecosystem.
Morgridge Hall is more than just a building—it is a cultural hub for learning and collaborative research, a sustainable space that reflects the values of the University of Wisconsin–Madison, and a model for future academic architecture. Its commitment to innovation, sustainability, inclusivity, and the history of the region positions Morgridge Hall as a catalyst for the future of research and education on campus and beyond.
The building opened its doors at the start of the fall semester on September 3, uniting three of the campus’s fastest-growing majors in a dynamic new home. As the new hub for research, education, and outreach in technology, Morgridge Hall brings together the diverse academic units of the School of Computer, Data and Information Sciences for the first time. Each floor offers fresh opportunities for discovery, collaboration, and connection—empowering everyone to shape the future of technology.
- Architects
- LMN Architects
- Any
- 2025
- Estat del projecte
- Construït
- Client
- University of Wisconsin-Madison
- Equip
- John Aldredge, Kjell Anderson FAIA, Hank Butitta, Michael Day, Jeff Floor AIA, Cameron Irwin, Tanner Kirchoff AIA, Mark La Venture AIA, Susan Lowance AIA, Vernita Lytle IIDA, Jessica Miller AIA, Sam Miller FAIA, Jennifer Milliron AIA, Mark Nicol AIA, Charlotte Pang, Charlotte Phillips, Chris Savage, Huma Timurbanga, Mark Tumiski AIA, Stephen Van Dyck AIA, Sunmin Whang AIA
- Design Architect
- LMN Architects
- Architect of Record
- Kahler Slater, Inc.
- Structural Engineer
- Thornton Tomasetti
- Civil Engineer
- GRAEF
- Landscape Architect
- Confluence
- Lighting Design
- HLB Lighting Design
- Plumbing/Fire Protection Engineer
- IBC Engineering Services, Inc.
- Mechanical/Electrical/Fire Alarm Engineer
- Affiliated Engineers, Inc.
- AV/IT/Acoustical/Security Engineer
- NV5
- Environmental Branding/Signage
- Kahler Slater, Inc.




























