The Graystone Residential Building
800 Columbia Street, Seattle, WA, USA
LMN celebrates the recent completion of the Graystone Residential Building. Located in Seattle's First Hill neighborhood, the project presents a contemporary approach to urban living within a bustling metropolitan environment. Situated in a transitional zone between the high rises and urban activity of downtown Seattle and the lower-density neighborhood of Capitol Hill, Graystone thoughtfully integrates with its surroundings, offering residents an urban oasis in the heart of Seattle.
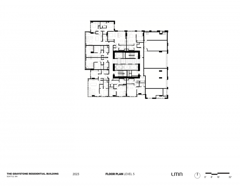
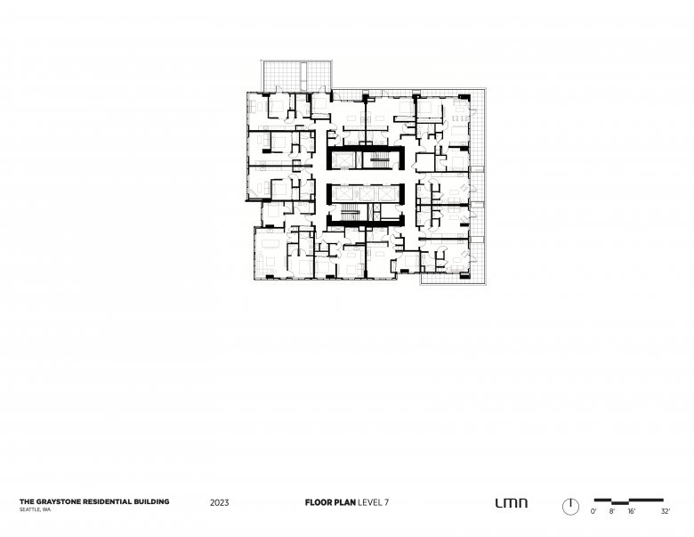
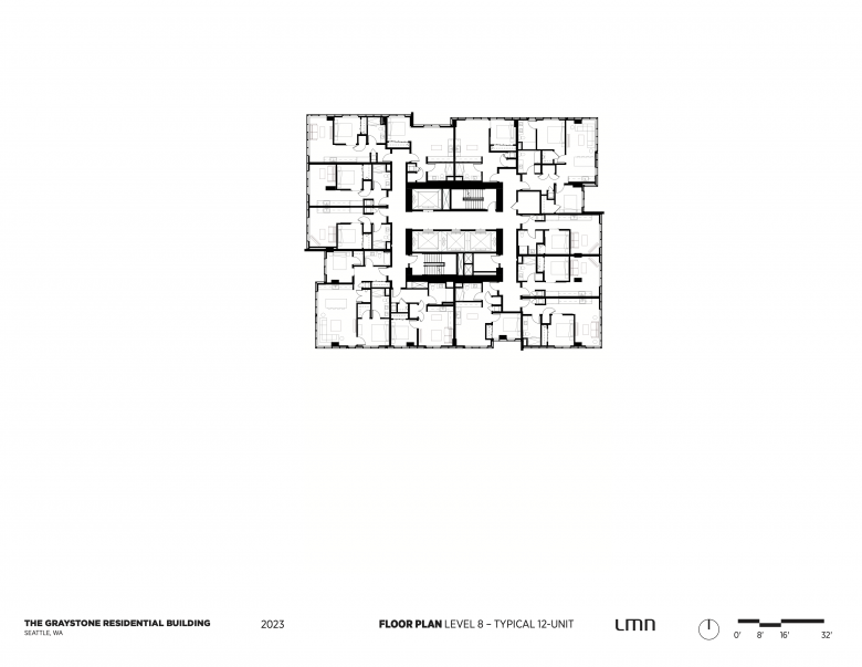
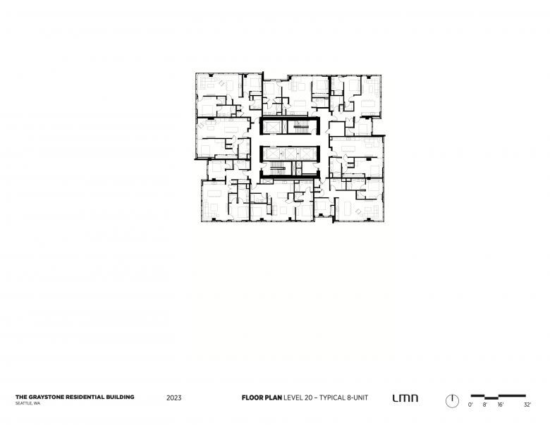
Graystone’s design is conceived in three parts, all relating to the surrounding context: the podium level, the tower, and the crown. Comprising the first five floors, the podium level is expressed in ground face CMU masonry, relating to the neighboring historic buildings which average five stories and are typically expressed in stone or brick. The remaining 29 floors take the form of a glass-and-steel tower with horizontal bands divided into four vertical quadrants, which connects visually to the nearby high rises and helps break down the tower’s scale. The iconic roofline offers an elegant addition to the city skyline beyond. Together, the building’s form and exterior palette help Graystone weave into the existing urban fabric, enhancing its connection to the neighborhood.
The building's design ethos revolves around being a good neighbor by creating a human-scaled, pedestrian-friendly environment on the ground level, establishing a harmonious relationship with the street. A defining feature of Graystone is the two-tiered Open Space Park, occupying nearly half of the development's footprint. With west-facing views of downtown Seattle and Puget Sound, this expansive outdoor oasis provides residents and neighbors alike with a tranquil retreat from city life. Designed to serve as a communal gathering space, the park fosters a sense of community while offering respite amidst the urban landscape.
The 295,000-square-foot building comprises 271 residential units across a diverse range of floor plans, catering to the needs of modern urban dwellers. From urban 1-bedrooms to spacious corner 2-bedroom units and 4 penthouse units on the top floor, each residence is meticulously crafted to maximize comfort and functionality. The building’s narrow profile results in shallower floorplates than is typical for residential high rises, allowing larger windows and greater access to daylight, fresh air, and views in every unit. Throughout, units enjoy views in all directions towards Mount Rainier, downtown Seattle, Lake Union, Mt. Baker, and the Puget Sound.
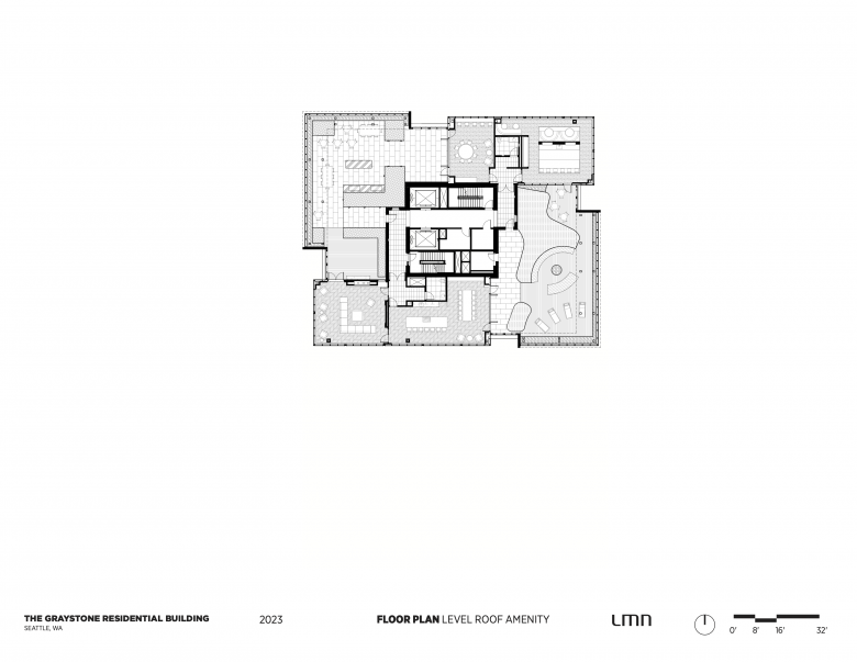
The building’s range of amenities further elevate the living experience, with two rooftop decks boasting panoramic views of the city skyline and surrounding landscape. The western, sunset-facing deck offers active spaces with barbeques, tables, and chairs, while the east-facing deck is more tranquil with a firepit, benches, and lounge chairs. Inside, Graystone offers residents an array of spaces for relaxation and entertainment ranging from a lounge to a media room, entertainment kitchen, and game room. Additionally, the first two floors feature a blend of shared amenities, including a fitness room, pet wash, and bike storage, enhancing the sense of community within the building. LEED Silver certified, the building embodies a commitment to environmental responsibility while providing residents with a sanctuary amidst the dynamic backdrop of downtown Seattle and the First Hill neighborhood.
- Architects
- LMN Architects
- Any
- 2023
- Estat del projecte
- Construït
- Client
- Daniels Real Estate LLC
- Equip
- Clay Anderson, Kate Austin, John Chau, Steve DelFraino, Stephen DeMayo, Tiffani Erdmanczyk, Nick Freese, Thomas Friedl, Jim Grady, Howard Howlett, Cameron Irwin, Euiseok Jeong, Joanne Koola, Vanessa Ly-Nguyen, Jennifer Marckx, Graham Moore, Daniel Nguyen, Chris Patterson, Tim Pfeiffer, Jeremy Schoenfeld, Pamela Trevithick, John Woloszyn, Rushyan Yen, Kevin Zhang
- Project Contractor
- Andersen Construction
- Structural and Civil Engineer
- Coughlin Porter Lundeen
- Landscape Architect
- HEWITT
- Interior Design
- ROBIN CHELL DESIGN
- MEP, Lighting & Sustainability
- RUSHING
- Code
- Pielow Consulting
- Acoustic
- SSA Acoustics
- Envelope
- MORRISON/HERSHFIELD
- Elevator
- Fortune Shepler Saling
- Shoring
- Ground Support PLLC

















































