Neubau eines Designstudios für die Staatliche Berufsfachschule und Fachschule für Produktdesign
Selb, Germany
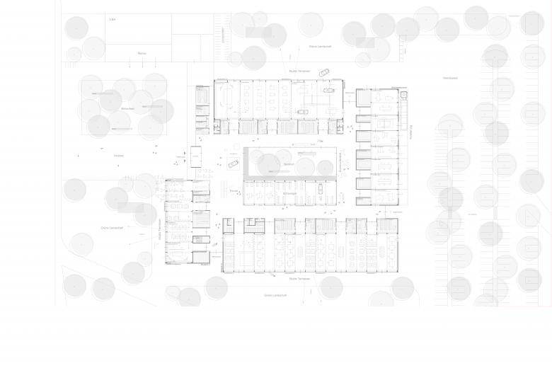
Der Neubau gliedert sich in vier Pavillons, welche im windmühlenartigen Verband um ein gemeinsames Zentrum mit einem grünen Innenhof angeordnet sind. Hin zum Hutschenreutherplatz erfolgt die Haupterschließung über einen Vorplatz in ein helles Foyer.
Für die Platzfläche ist ein heimisches Granitpflaster aus dem Fichtelgebirge angedacht. In welchem eine intarsien artig gefasste Grasfläche mit einem Birkenhain und Sitzbänken aus Granitblöcken präzise eingelassen ist. Darüber hinaus dient die Platzfläche in Teilen auch als Freifläche für den Pausenbereich, der künftigen Mensa und einigen Fahrradstellplätzen. Die überdachten Stellplätze befinden sich hinter der Durchfahrt zwischen Neubau und 2.BA.
Durch die pavillonartige Anordnung der Studios und Werkstätten kommuniziert das Gebäude auf allen Seiten gleichmäßig mit den umgebenden Freiräumen. Zudem führt das Bauvolumen durch die dargestellte Körnigkeit der einzelne Baukörper zu einem feinsinnig proportionierten Ensemble für den Ort.
Neben dem Haupteingang werden um das Gebäude weitere Nebeneingänge an sinnvollen Stellen für Schüler*in / Studenten*in geschaffen. Durch dieses flexible Erschließungssystem können zudem alle Studiobereiche über eine asphaltieren Weg angeliefert werden. Dieser erhält eine Schicht aus eingestreuten und eingewalzten Granitfeinsplitt/Quarzsandgemisch.
Eine zweite Straße führt direkt zu den Parklätzen, sowie dem Müllplatz im östlichen Bereich des Wettbewerbgrundstücks. Diese Funktionen werden hinter dem Gebäude vorgeschlagen, damit dass Neue vis-a-vis zum Hutschenreuterplatz und dem Ensemble Spiegelhaus-Regenbogenhaus-Pförtnerhaus eine entsprechende Adresse erhält.
Neben dem vorgeschlagenem Birkenhain auf dem Vorplatz, wird auf den Grünflächen und dem restlichen Grundstücke eine Mischbepflanzung aus einheimischen Laubbäumen vorgeschlagen.
Das Gebäude ist in einer nachhaltigen und ökologischen Holzbauweise geplant. Für Fassade und Dach werden geflammte Lärchenverschalungen vorgeschlagen. Das flammen von Holz bildet dabei einen hoch effizienten Holzschutz mit einer sehr langen Tradition. Die Fensterelemente werden in einer Pfostenriegelkonstruktion mit 3-fach Verglasung ausgebildet. Die großen Fensterflächen erhalten zudem einen außenliegenden Sonnenschutz, der auch bei Bedarf einen guten Sichtschutz darstellt.
Im Gebäudeinneren ist als Fußbodenbelag ein homogener angeschliffener Estrich angedacht, der durch alle Flure und Studios fließt. Die Arbeitsräume sind im inneren zum Kontrast zur Außenfarbe weiß verputzt und bilden den gewünschten neutralen Hintergrund für die Arbeit an den einzelnen Werkstücken.
Darüber hinaus erhalten die atelierartigen Studios mit ihren Scheddächern eine gleichmäßige und sanfte Tageslichtausleuchtung über Nordlicht. Durch textile Behänge können diese Oberlichter bei Bedarf abgedunkelt werden.
- Architects
- Atelier 30
- Any
- 2021
- Estat del projecte
- Disseny
- Wettberwerb
- 2021, 1. Preis










