Neubau Fakultät Ingenieurwissenschaften und Informatik, Hochschule Osnabrück
Osnabrück, Germany
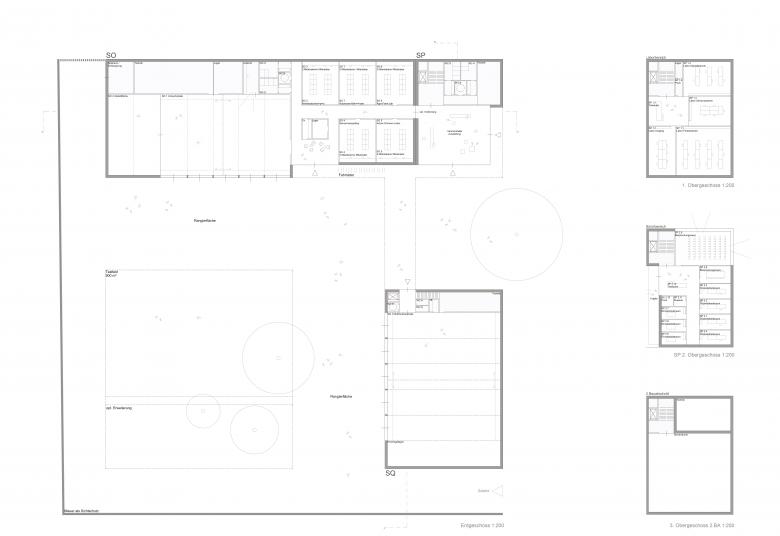
Durch die Lage der neuen Gebäude wird ein feinsinniges Ensemble entwickelt, welches dem neuen Campusvorplatz an der Sedanstraße eine entsprechende Fassung, bzw. einen Abschluss verleiht. Durch die leichte Erhöhung des Laborgebäude-SP entsteht eine repräsentative Eingangssituation in den Campus. Diese neue Adressformulierung wird, durch das verglaste multifunktionale Foyer im Erdgeschoss und der raumhohen Verglasung des großen Besprechungsbereiches im 2.OG mit Blick auf dem Hochschulvorplatz, weiter inszeniert. Hin zur Sedanstraße folgt die Gebäudestruktur dem Straßenzug. Entlang der Artilleriestraße wird eine Fassung durch die Weiterentwicklung der bereits vorhandenen Mauer vorgesehen. Hierdurch entsteht eine introvertierte begrünte Hofsituation, in dessen Zentrum das Testfeld mit den entsprechenden Rangierflächen eingebettet ist.
Alle Einfahrtstore für die Bereiche Landmaschinen, bzw. der Multifunktionshalle sind konsequent zu dieser Fläche hin orientiert. Alle geplanten Gebäude lassen sich dabei in den gewünschten Bauabschnitten realisieren.
Für das Gebäudeensemble des AGRO-Technikums-SO, Laborgebäudes-SP, sowie der Multifunktionshalle-SQ, ist als prägendes Material ein monolithischer Sichtbeton vorgesehen, in welchem präzise gefasste Fensterflächen eingelassen sind. Als zweites Material stehen diesem monolithischen Baustoff filigran wirkende Stegplatte aus extrudiertem Polycarbonat (Wärmeleitfähigkeit: 1,1 W/mK) im Bereich der Versuchs- und Multifunktionshalle gegenüber. Diese werden im Bereich der Hallen kostengünstig auf eine Stahlkonstruktion montiert. Entsprechend dieser differenzierten Materialkomposition stellen sich die Funktionen des Gebäudeensembles ablesbar dar und das gesamte Gebäudeensemble erhält eine gewisse Körnigkeit mit einer unterschiedlichen Außenwirkung bei sich verändernden Lichtsituationen. Zwischen Laborgebäude und Multifunktionshalle entsteht, in Verbindung des bestehenden
Solitärbaumes und einer zurückspringende Vordachsituation, eine einladende Geste in Richtung des Innenhofes, bzw. hin zum verglasten Haupteingang der Versuchshalle, die auch für Ausstellungen genutzt werden kann. Von hier aus besteht auch eine optionale direkte interne Anbindung an den künftigen Trakt des AGRO-Technikums. Über eine Treppenhaus mit Aufzug wird im 1.OG der Laborbereich, bzw. im 2.OG der Bürobereich auf kurzem Weg erschlossen. In einem Dachgeschoss können im gewünschten 2. Bauabschnitt weitere Serverräume angeboten werden.
Über einen weiteren überdachten Gebäuderücksprung im Innenhofbereich erhält der Baukörper des AGRO-Technikums seinen Haupteingang. An diesem schließen direkt die Arbeitsplätze der Mitarbeiter, sowie die Versuchshalle an.
Die Multifunktionshalle (SQ) mit ihrem Hochregallager erhält ebenfalls Ihren Eingang über das verbindende Vordach. Über den Technikflächen im EG befinden sich die gewünschten multifunktional nutzbaren Lagerflächen.
Darüber hinaus besitzt die Multifunktionshalle, analog zur Versuchshalle, großflächige Torelemente zum Innenhofbereich. Nach den geforderten vorgeschalteten Rangierflächen folgt hier die begrünte Testfläche der Anlage. Hier ist auch ein Bereich für eine künftige optionale Erweiterung dargestellt.
Prinzipiell wurde bei der Planung der Gebäude zum einen auf ein hohes Maß an Flexibilität und Funktionalität innerhalb der Grundrisszonierungen geachtet, zum anderen setzt das Materialkonzept bewusst auf den Einsatz weniger und „ehrlicher“ Materialien, welche durch ihr selbstverständliches Zusammenspiel mit dem Bibliotheksbau einen unaufgeregten und selbstverständlichen Neubau der „Drei Gebäude an der Sedanstraße“ erschaffen. Ein kompaktes Bauvolumen, robuste und einfache Materialien versprechen überdies eine wirtschaftliche Bauweise.
- Architects
- Atelier 30
- Any
- 2022
- Estat del projecte
- En construcció
- Client
- Hochschule Osnabrück








