Orgelprospekt der Konstantin-Basilika
Konstantinplatz, Trier, Germany
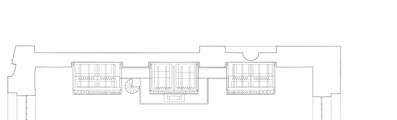
Die eindrucksvolle Raumwirkung der Basilika beruht auf einer klaren, sparsamen und strengen Gliederung des Raumes. Nach den gleichen Prinzipien wird auch das hinzukommende Element, der neue Orgelprospekt, gestaltet. In Anlehnung an die drei Fensterfelder als dominierendes Gliederungsthema der Südwand ist die Orgel in drei Prismen (Türme) mit gleichmäßig und ruhig wirkenden Oberflächen unterteilt. Diese Trias und die Stärkung der vorherrschenden Vertikalität der Fensternischen lassen horizontale Verbindungselemente wie Galerie und Trakturkanäle in den Hintergrund treten.
Bauherr
Land Rheinland-Pfalz
vertreten durch:
Landesbetrieb Liegenschafts- und Baubetreuung
(LBB), NL Trier
Nutzer
Evangelische Kirchengemeinde Trier
Architekten
Auer Weber, Stuttgart
Prof. Carlo Weber †
Jan Berendes (Projektleitung)
Leistungsbild
Lph. 2 – 6 (+ künstl. Oberleitung) HOAI
Fachplaner
Tragwerksplanung: Knippers Helbig GmbH, Stuttgart
Orgelbau: Hermann Eule, Bautzen
Stahlbauarbeiten: Steka GmbH, Zemmer
- Architects
- Auer Weber
- Any
- 2014
- Estat del projecte
- Construït











