Projektwettbewerb Dorfzentrum

Pfaffnau LU, Switzerland

Der Entwurf für den Neubau für die Gemeindeverwaltung und die Raiffeisenbank, sowie vier grosszügige Wohneinheiten, basiert auf der Idee eines kompakten, leicht geknickten Baukörpers, der sich in seiner Ausrichtung neutral zur Kantonsstrasse verhält, also keine unnötige Zeilenbebauung vorsieht…

Situationsplan
Grundriss Erdgeschoss
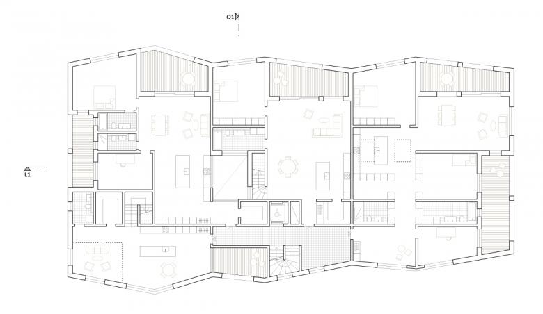
Grundriss 2. Obergeschoss
Querschnitt
Längsschnitt
Ansicht Süd-Ost
Ansicht Nord-West
Architects
Rothenfluh & Partner Architekten
Any
2021
Estat del projecte
Disseny

Projectes relacionats 

  • Eissporthalle Davos
    WALTER BIELER AG
  • Moos
    playze
  • Reiters Reserve Premium Suiten
    BEHF Architects
  • Erweiterung und Instandsetzung Hallenbad Altstetten
    MIYO Visualisierung
  • Neubau von fünf Einfamilienhäusern
    Bäumlin+John AG

Revista 

Altres projectes per Rothenfluh & Partner Architekten 

Wohnhäuser Gartenheimstrasse
Luzern, Switzerland
Projektwettbewerb Geissenstein
Luzern, Switzerland
Erlenmatt, Cooperative d'Atelier, Atelier 2.02
Basel
Punkthaus Holzsystembau
Hellikon
Wohn- und Pflegezentrum Lippenrüti
Neuenkirch, Switzerland