Punkthaus Holzsystembau
Hellikon
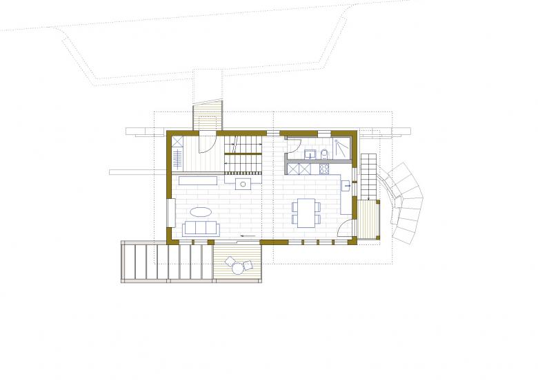
Das Holzhaus am Steilhang weisst einen äusserst kleinen Fussabdruck auf. Durch eine Split-Level Lösung erschlossen, steht das offene Gebäudeinnere für Transparenz. Die Gebäudehülle besteht aus einer einschichtigen, massiven Holzkonstruktion.
- Architects
- Rothenfluh & Partner Architekten
- Any
- 2021
- Estat del projecte
- Construït














